修剪操作提供修剪含已定义边界的工程视图的方法。可在以下类型除外的视图上执行“修剪”操作:
在修剪视图上,您可以执行以下视图操作:
可以通过用鼠标拖拉出的环形或矩形边界或者预定义视图草图来执行修剪操作。
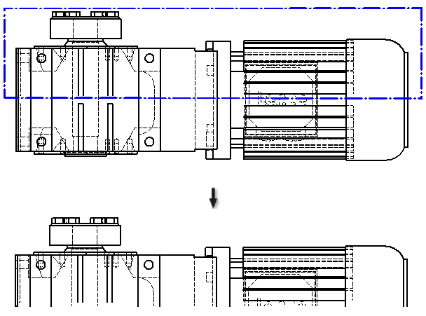
在下图中查看修剪操作的结果。

修剪视图是通过修改已建立的工程视图来创建的。
修剪操作支持所有类型的工程图标注。可以将标注固定至修剪几何图元的端点,包括从修剪边产生的边(如果显示)。
尺寸
修剪会影响现有图纸尺寸。如果标注定位点丢失,标注会出现问题。
中心线和中心标记
修剪会影响现有中心线和中心标记的所有类型。如果定位点丢失,标注会出现问题。