关于在图纸上隐藏视图的某些部分
在图纸上放置视图时,可以隐藏视图的某些部分,以专注于某一区域:
使用下列一种或两种技术:
裁剪区域
:使用裁剪区域可将视图聚焦于建筑模型的某个特定区域。
遮罩区域
:使用遮罩区域可隐藏视图的不相关区域(在矩形裁剪区域内)。
提示:
若要保留视图的原始版本,请首先创建一个复制视图。 (在项目浏览器中,在视图名称上单击鼠标右键,然后单击“复制视图”
“复制”。) 打开复制视图,再根据需要应用裁剪区域和遮罩区域。 然后将复制视图放置到图纸上。
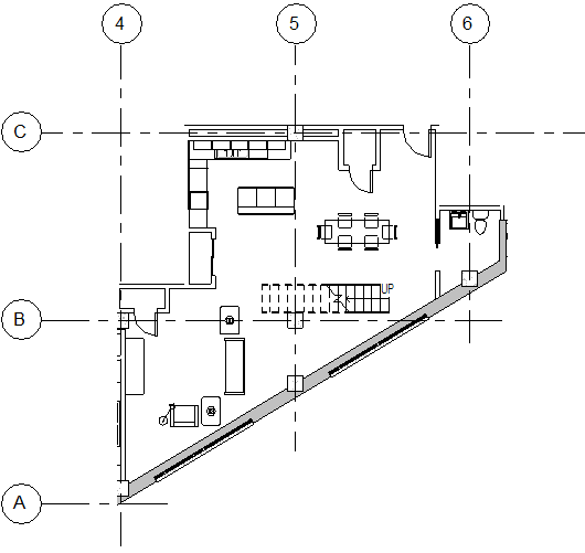
建筑示例
在以下楼层平面中,非矩形裁剪区域隐藏了房间单元右上角和左上角的不相关的模型几何图形。
结构示例
父主题:
图纸
相关信息
关于裁剪区域
遮罩区域