要控制范围框中基准图元的可见性,必须将每个基准图元与范围框相关联。
例如,对于具有两个范围框(分别命名为“范围框 1”和“范围框 2”)的项目,可从下拉列表中选择“范围框 1”。
现在,基准仅显示在剖切面与选定范围框相交的视图中。 如果视图的剖切面位于范围框以外,则与范围框相关联的基准面不会显示在该视图中。
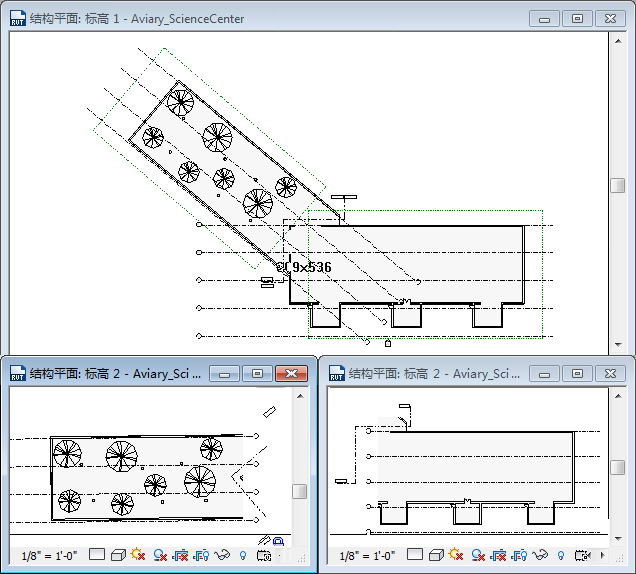
例如,在下图中,顶部视图显示了围绕着主建筑和翼形鸟舍的范围框。 范围框 1 应用到了主建筑的轴线,范围框 2 则应用到了翼形鸟舍的轴线。 因此,相关视图(底部)仅显示应用到该建筑的各个部分的轴线。

用范围框调整基准大小
可以通过选择并拖曳范围框来调整与范围框相关的基准的范围;相关基准会随之移动。

拖曳范围框会移动与其相关的标高线
要将某一标高基准的范围恢复为默认设置,请选择标高,再单击鼠标右键并单击“重设为三维范围。 不能将模型(三维)范围从范围框的边缘移动到指定的范围,但二维范围可以在视图中修改。 该选项将范围恢复为默认位置:与范围框的外部略有偏移。