显示限制条件
在视图中临时查看尺寸标注和对齐限制条件,以解决或修改模型中的图元。
注:
此特征或功能仅适用于
Revit 2015 版软件
Autodesk Maintenance Subscription 和 Desktop Subscription 客户。
视频:显示限制条件
需要在浏览器中启用Javascript 才能观看此视频。
在视图控制栏上单击
(显示限制条件)。
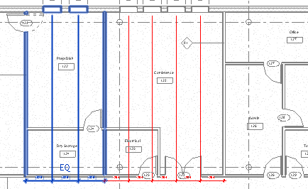
“显示限制条件”绘图区域将显示一个彩色边框,以指示处于“显示限制条件”模式。 所有限制条件都以彩色显示,而模型图元以半色调(灰色)显示。
注:
若要更容易地查看该模式中的限制条件,请确保“细线”显示选项未被选中(“视图”选项卡
“图形”面板
“细线”)。
选择限制条件以高亮显示受约束的图元。
在以下示例中,若选择左侧的限制条件,则受约束的 2 个墙和 2 个窗也会高亮显示。
可选:只需删除或解锁即可移除限制条件。
注:
在草图模式下为图元添加的限制条件以半色调颜色显示。 双击图元以进入草图模式来修改或移除限制条件。
在“视图控制栏”上,单击
以退出“显示限制条件”模式。
父主题:
限制条件
相关任务
删除限制条件
相关信息
关于限制条件