使用「依元素展示隱藏線」,顯示僅於目前視圖內被其他元素隱蔽的模型元素和詳圖元素。
「依元素展示隱藏線」工具提供一種方式,取代以圖形顯示目前視圖中的個別元素。您可對其品類具有「隱藏線」子品類的元素使用此工具。
註: 「依元素展示隱藏線」工具不適用於:
- 透視視圖。
- 其「展示隱藏線」視圖參數設定為「全部」或「無」的視圖。(它必須設定為 <依領域>。)
- 在連結模型中的元素。
- Revit MEP,或「領域」參數設定為「電氣」、「機械」或「衛工」時 Autodesk Revit 中的視圖。
例如,在南立面有一個入口,而您希望在北立面使用隱藏線展示此入口的輪廓。
- 開啟您想要在其中展示被隱蔽元素之隱藏線的視圖。
- (如有需要) 若要顯示「性質」選項板上的視圖性質,以滑鼠右鍵按一下視圖的空白區域,然後按一下「性質」。
- 在「性質」選項板上,若為「展示隱藏線」,請選取 <依領域>。
註: 僅當「展示隱藏線」視圖參數設定為 <依領域>時,使用「依元素展示隱藏線」工具顯示指定的隱藏線。
- 在檢視控制列上,按一下「視覺型式: 線架構」。
「線架構」型式可讓您選取隱藏的元素加以顯示。
- 按一下「檢視」頁籤
「圖形」面板
(依元素展示隱藏線)。
- (可選) 若要顯示多個元素的隱藏線,請在選項列上選取「多個選取」。
- 選取隱藏另一個元素的元素。
- 選取一或多個被隱蔽的元素。
- 在檢視控制列上,對於「視覺型式」,選取「線架構」以外的型式。
這些元素的被隱蔽邊緣和線將顯示為隱藏線。
- (可選) 若要反轉此工具的效果,請將視覺型式變更為「線架構」,然後按一下「檢視」頁籤
「圖形」面板
(依元素移除隱藏線)。
然後選取將隱藏被隱蔽元素的元素,選取被遮蔽的元素,然後重新變更視覺型式。
- 按一下「修改」以結束「隱藏線」工具。
若要變更用來顯示整個專案之隱藏線的型式,請使用「物件型式」對話方塊。
若要變更僅用來於此視圖中顯示隱藏線的型式,請使用「可見性/圖形」對話方塊。
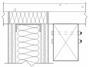
範例:展示詳圖元件的隱藏線
下列範例說明了使用「依元素展示隱藏線」,並選取 4x6 立柱和螺栓後的結果。這時會顯示某個螺栓的隱藏線,而遮蔽第二個螺栓的線。

註: 物件必須依正確順序排列。您無法隱藏位在 4x6 立柱上方的螺栓線。必須先將螺栓移到要遮住的 4x6 立柱後面。若要將螺栓展示為隱藏線,請選取 4x6 立柱,然後選取螺栓。