從其他 CAD 程式匯入製圖視圖
您可從其他 CAD 程式匯入視圖,並使用其作為
Revit
製圖視圖。然後,您可參考圖說或剖面的製圖視圖,並將其放置於建構文件集的圖紙上。
按一下「檢視」頁籤
「建立」面板
(製圖視圖)。
為新的製圖視圖輸入名稱和適當比例。
按一下「插入」頁籤
「匯入」面板
(匯入 CAD)。
選取詳圖及 CAD 格式。
如果您處於詳圖中,請選取「僅目前視圖」選項。
註:
如果您處於製圖視圖中,將自動選取此選項。
按一下「開啟」來放置 CAD 詳圖。
如有需要,可以將此視圖拖放到圖紙上。
如有需要,可以在放置圖說或剖面時參考此視圖。
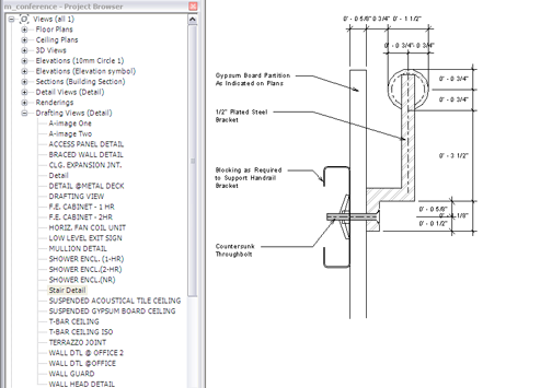
匯入製圖視圖的建築範例
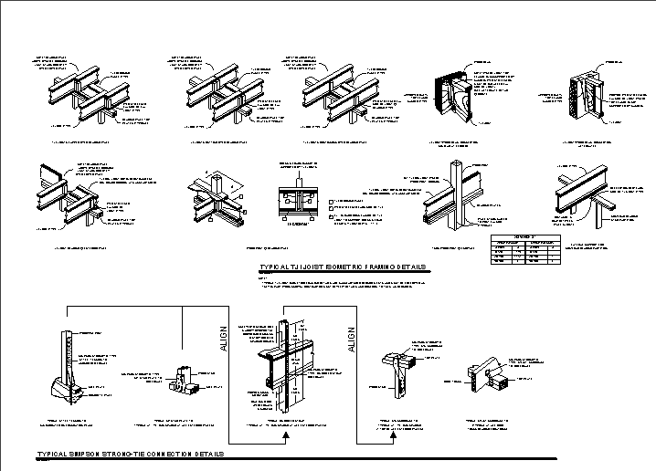
匯入製圖視圖的結構範例
上層主題:
製圖視圖
相關工作
建立參考圖說
建立參考剖面
將視圖加入到圖紙
相關資訊
關於製圖視圖
關於詳圖資源庫