詳圖
建立詳圖,將更多資訊加入模型的特定部分。
「檢視」頁籤
「建立」面板
(圖說)。
「視圖」頁籤
「建立」面板
(剖面)。
本節主題
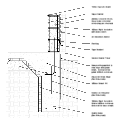
關於詳圖
詳圖是在其他視圖中顯示為圖說或剖面的模型視圖。此類型的視圖表現的模型通常比母視圖中模型的比例更為細緻。
關於參考圖說視圖
當您從剖面、平面或立面視圖中建立詳圖圖說時,可將視圖連結至建築模型的特定區域。
關於詳圖類型性質
每個詳細視圖皆有剖面標籤、圖說標籤和參考標示的類型性質。
建立詳圖
您可以從平面、剖面或立面視圖建立圖說,然後在將模型幾何圖形用做基底時加入詳圖元件。建立圖說或剖面詳圖時,可以參考模型中的其他詳圖或製圖視圖。
複製詳圖
複製視圖時,您可以決定模型幾何圖形與詳圖幾何圖形都會複製到新視圖。
將視圖儲存至外部專案
您可將視圖儲存至外部
Revit
專案。此操作會將視圖和該視圖中所有可見的元素 (模型元素和視圖特有的元素) 儲存至新專案檔。
從已儲存的詳圖插入詳圖元件
詳圖視圖例證性質
修改視圖的例證性質來控制詳圖標籤的顯示。
上層主題:
詳圖