顯示約束
暫時查看視圖中的標註和對齊約束,以針對模型中的元素進行疑難排解或修改。
註:
此特徵或功能僅可用於
Revit 2015 軟體版本
的 Autodesk Maintenance 與 Desktop Subscription 客戶。
視訊:顯示約束
需要在瀏覽器中啟用Javascript 才能觀看此視頻。
在檢視控制列上,按一下
(「顯示約束」)。
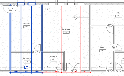
「顯示約束」繪圖區域會顯示彩色邊界,指出您正處於「顯示約束」模式。所有約束均以彩色顯示,模型元素會以灰階 (灰色) 顯示。
註:
若要更輕鬆地在此模式中查看約束,請確保未選取「細線」顯示選項 (「檢視」頁籤
「圖形」面板
(「細線」))。
選取約束,以亮顯其約束的元素。
在以下範例中,選取了左側的約束,受到約束的兩面牆與兩扇窗也已亮顯。
可選:移除約束 (只需刪除約束,或將其解鎖即可)。
註:
在草圖模式中針對元素加入的約束以灰階顏色顯示。按兩下元素進入草圖模式,以修改或移除約束。
在檢視控制列上,按一下
結束「顯示約束」模式。
上層主題:
約束
相關工作
移除約束
相關資訊
關於約束