Operace ořezání nabízejí možnost oříznutí pohledů výkresu s určenými hranicemi. Operace ořezání je provedena u stávajících pohledů kromě následujících typů pohledu:
U ořezaných pohledů můžete provést následující operace:
Operace ořezání lze provést u pohledu s kruhovým nebo čtvercovým tvarem nebo u předem definovaného náčrtu pohledu.
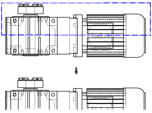
V následujícím obrázku si prohlédněte výsledek operace ořezání.

Ořezané pohledy jsou vytvořeny provedením změn v založených pohledech výkresů.
Operace ořezání podporují všechny typy poznámek výkresů. Poznámky lze ukotvit ke koncovým bodům ořezané geometrie, včetně hran vytvořených z ořezaných hran v případě, že jsou zobrazeny.
Kóty
Ořezání ovlivňuje stávající kóty listu. Pokud se ukotvení poznámek ztratí, poznámky se poškodí.
Osy a středové značky
Příkaz Oříznout ovlivňuje stávající osy a středové značky všech typů. Pokud se ukotvení ztratí, poznámky se poškodí.