Tato metoda umístí prostor ve složitých plochách, kde je objem komplexní plochy zavazben z podlaží základny do vyššího podlaží. Toto téma můžete použít při umisťování prostor pro plochy, například ty, které procházejí více podlažími, ty, které mají vetknuté vyšší podlaží nebo plochy s šablonováním jako horním limitem pro část plochy. V těchto případech lze k oddělení těchto ploch použít čáry oddělení prostoru nebo další podlaží.
Vytvoření pohledů řezů
Vytvoření podlaží
Rozdělení plochy pomocí čar oddělení prostorů
Aktivace viditelnosti prostorů
Umístění prostoru
Ověření prostorů
- Pro plochu, která prochází více podlažími, klikněte dvakrát v Prohlížeči projektu na půdorys podlaží obsahující podloží základny.
Dále vytvořte pohled řezu, čímž ověříte prostory vertikálně při umístění.
Tip: Prostory se nezobrazí v prostorových pohledech.
Můžete použít existující pohled řezu, avšak ujistěte se, zda linie řezu protíná plochu, kde budou prostory umístěny.
- Klikněte na kartu Pohled
panel Vytvořit 
Řez.
- V půdorysném pohledu podlaží nakreslete dva kolmé řezy přes půdorys podlaží, jak je znázorněno.
Ujistěte se, zda linie řezu protíná plochu, do které umísťujete prostor. Pokud ne, prostor se v pohledu řezu nezobrazí.
- V Prohlížeči projektu dvakrát klikněte na pohled nového řezu, čímž jej otevřete.
Toto téma předpokládá, že v návrhu existují standardní podlaží a že nemusí být vytvořena. Pokud podlaží neexistují, je třeba je vytvořit.
- Klikněte na tlačítko Upravit.
- Klikněte na půdorys podlaží, aby se změnil na aktivní pohled.
- Klikněte na kartu Analyzovat
panel Prostory a zóny
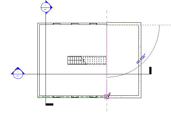
Oddělovač prostorů a nakreslete oddělovač prostorů, čímž rozdělíte plochu podle různých horních limitů. Poznámka: Čáry oddělení prostorů jsou komponenty ohraničující místnost.
- V Prohlížeči projektu otevřete zobrazení obou nových řezů.
- Zavřete všechny pohledy kromě pohledů dvou řezů a půdorysu podlaží, kam chcete umístit prostor, a na klávesnici zadejte WT, čímž dané tři pohledy umístíte vede sebe.
Také můžete kliknout na kartu Pohled
panel Okna
Vedle sebe.
- Klikněte na pohled řezu, aby se aktivoval.
- Na klávesnici zadejte VG.
- Na kartě Kategorie modelu v dialogu Viditelnost/zobrazení přejděte k položce Prostory.
- Rozbalte položku Prostory, vyberte možnost Interiér a Reference (pokud chcete zobrazit referenční nitkové kříže) a klikněte na tlačítko OK.
- Opakováním postupu nastavíte prostory jako viditelné v druhém pohledu řezu a půdorysném pohledu podlaží.
- V aktivním půdorysném pohledu podlaží klikněte na kartu Analyzovat
panel Prostory a zóny
Prostor.
- Na panelu Možnosti proveďte následující:
Výběr následujících možností podle potřeby
- V položce Horní limit určete vyšší podlaží.
Při zadávání horního limit pro prostor pod střechou určete horní limit podlaží, které se nachází nad horní částí střechy tak, aby se prostor přichytil ke střeše. Pokud takové podlaží neexistuje, vytvořte jej. Další informace najdete v části Umísťování prostorů po střechu.
- V položce Odsazení zadejte hodnotu 0' 0" (0,00 mm).
Tyto dvě možnosti určují vertikální rozsah nebo výšku prostoru.
Poznámka: Pokud jsou hodnoty horního limitu a odsazení vyšší než hodnoty vyššího podlaží, vertikální hranice prostoru se přichytí ke komponentě ohraničení místnosti, například ke stropu nebo podlaze, i když je horní limit vyšší než komponenta ohraničení místnosti. Děje se tak, protože při výběru možnosti Plochy a objemy (výchozí nastavení) se vertikální hranice prostoru přichytí ke komponentám ohraničení místnosti, například ke stropům, podlahám nebo střechám. Objem prostoru bude vypočten až po komponentu ohraničení místnosti. Možnost Plochy a objemy se nachází na kartě Architekt

rozevírací seznam Místnost a plocha

Výpočty ploch a objemů.
- V textovém poli Prostor buď ověřte, zda je vybrána položka Nový (pokud umisťujete nový prostor), nebo vyberte neumístěný prostor v seznamu a umístěte jej.
- Popisek při umístění: Umístí popisek prostoru při umístění prostoru.
Možnost Popisek při umístění je vybrána jako výchozí nastavení. Pokud je vybrána možnost Popisek při umístění, můžete vybrat typ popisku v seznamu Výběr typu.
- Textové pole Umístění popisku: Určuje možnosti Horizontální, Vertikální nebo Model pro popisek prostoru.
Je k dispozici, pouze pokud je vybrána možnost Popisek při umístění.
- Odkaz: Vytvoří odkazovou čáru pro popisek prostoru.
Je k dispozici, pouze pokud je vybrána možnost Popisek při umístění.
- Zobrazit ohraničující prvky: Zvýrazní prvky ohraničení místnosti v modelu budovy za účelem okamžitého rozpoznávání.
- V půdorysném pohledu podlaží přesuňte kurzor nad plochu v modelu budovy a kliknutím umístěte prostor.
Poznámka: Prostory mohou být umístěny pouze v půdorysných pohledech podlaží.
- Klikněte na tlačítko Upravit.
- Vyberte prostor.
- Na paletě Vlastnosti v části Energetická analýza proveďte jeden z následujících úkonů:
- Zaškrtněte parametr Obsaditelné, pokud bude prostor obytný.
- Zrušte zaškrtnutí parametru Obsaditelné, pokud prostor nebude obsazen.
- Klikněte na tlačítko OK.
Poznámka: Pokud vložíte prostor do oblasti, která obsahuje místnost, parametr Obsaditelné je automaticky zaškrtnut. Tím se prostor definuje jako obsazený. Pokud oblast neobsahuje místnost, zaškrtnutí parametru Obsaditelné je automaticky zrušeno. Tím se prostor definuje jako neobsazený. Prostor je vždy možné předefinovat tak, že zaškrtnete tento parametr nebo zrušíte jeho zaškrtnutí. Parametr Obsaditelné ovlivňuje analýzu zátěže vytápění a chlazení.
- V pohledu řezu a půdorysném pohledu podlaží ověřte, zda vystínované plochy představující objem prostorů mají definovánu vazbu z podlaží základny na vyšší podlaží a zda neexistují nestínované plochy (způsobené například dutinami nebo šachtami). To umožňuje přesnější výpočet objemu.
- Pokud prostor není zavazben podle určení v pohledu řezu, ověřte, zda je horní limit prostoru určen vzhledem k vyšší podlaze a předefinujte prostor vertikálně, pokud je třeba.
Také je nutné vyřešit všechny nestínované oblasti.
Ostatní složité prostory lze rozdělit pomocí čar oddělení prostoru nebo podlaží, jak je znázorněno.
Příklad vlevo: Podlaží rozdělí plochu horizontálně. Dolní plocha má základnu jako Podlaží 1 a horní limit jako Podlaží 2. Druhý prostor je určen základnou jako Podlaží 2 a horní limit jako Úroveň vršku střechy.
Příklad vpravo: Čára oddělení prostoru rozdělí plochu vertikálně. Dolní plocha má základnu jako Podlaží 1 a horní limit jako Úroveň vršku střechy. Druhý prostor používá Úroveň 2 jako základnu a Úroveň vršku střechy jako horní limit.