Erstellen Sie Stecker dynamisch, indem Sie die Steckerparameter definieren, wie z. B. die Anzahl der Anschlüsse, den Anschlussabstand und die Anschlusswerte.
Mit dem Werkzeug Stecker einfügen wird ein Steckersymbol aus benutzerdefinierten Parametern erzeugt. Das Symbol wird unmittelbar erstellt und als eine Blockeinfügung in die aktive Zeichnungsdatei eingefügt. Da die Erstellung nach Bedarf erfolgt, müssen Sie keine Bibliothek mit Steckersymbolen erstellen oder pflegen.
Zeichnungseigenschaften ändern


. Finden
Betriebsmittel die Option Sequenziell.
Drahtnummern, Abschnitt Neue Drahtnummernplatzierung die Option Am Draht ausgerichtet. Stecker zur Zeichnung hinzufügen


. Finden
Anschlussabstand: 1.0
Anschlussanzahl: 15
Fester Abstand
Liste der Anschlüsse: 1
Alles einfügen

Die Vorschau sollte etwa der folgenden Abbildung entsprechen.

Es wird eine Vorschau des Steckers angezeigt, die in der Zeichnung platziert werden kann. Die Steckerseite des Steckers wird mit abgerundeten Kanten dargestellt. Der Einfügungspunkt des Steckers ist durch ein "x" gekennzeichnet. Ein Pfeil kennzeichnet die Drahtverbindungsrichtung der Steckerseite für Stecker-/Buchsen- bzw. reine Stecker-Steckereinfügungen oder zeigt die Drahtverbindungsrichtung für eine reine Buchsen-Steckereinfügung an.
Einfügepunkt angeben oder [Z=Zoom, P=Pan, X=drahtkreuzung, V=horizontal/vertikal, TAB=umdrehen]:
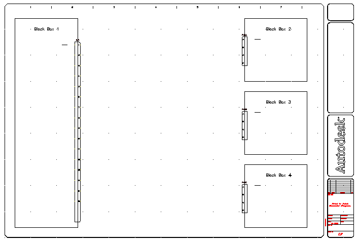
Platzieren Sie den Stecker in der Mitte des rechten Randes der Black Box 1

Dem Stecker wurde automatisch die Betriebsmittel-Kennzeichnung PJ1 zugeordnet.


. Finden
Anschlussabstand: 0.75
Anschlussanzahl: 4
Fester Abstand
Liste der Anschlüsse: A
Alle einfügen
Die Vorschau sollte etwa der folgenden Abbildung entsprechen.

Einfügepunkt angeben oder [Z=Zoom, P=Pan, X=drahtkreuzung, V=horizontal/vertikal, TAB=umdrehen]:
Platzieren Sie den Stecker in der Mitte des linken Randes der Black Box 2

Dem Stecker wurde automatisch die Betriebsmittel-Kennzeichnung PJ2 zugeordnet.
Den Steckern werden die Betriebsmittel-Kennzeichnungen PJ3 bzw. PJ4 zugeordnet.
