Eine Detailansicht ist eine Ansicht eines Modells, die entweder als Detailausschnitt oder Schnitt in anderen Ansichten angezeigt wird. In Ansichten dieser Art wird das Modell meist in einem detaillierteren Maßstab als in der übergeordneten Ansicht dargestellt.
Detailansichten können als Schnitte oder Detailausschnitte erstellt werden. Außerdem können sie mit Schnitt- und Detailausschnittsbeschriftungen versehen werden. Eine Detailansicht, die als Detailausschnitt erstellt wurde, kann also auch als Schnitt angezeigt werden, wenn die entsprechende Ansicht die Begrenzungen des Detailausschnitts schneidet. So können Sie beispielsweise einen Ausschnitt einer Detailansicht des Schnittpunkts zweier Wände anzeigen. Derselbe Detailausschnitt kann als Schnittansicht mit Beschriftungen in einer Schnittansicht des ganzen Gebäudes erscheinen.
Damit Beschriftungen in der Schnittansicht des Gesamtgebäudes angezeigt werden, müssen Sie für den Exemplarparameter Darstellen die Option Überschneidende Ansichten wählen. Dieser Parameter wird in der Eigenschaftenpalette festgelegt.
Die Sichtbarkeit einer Detailansichtsbeschriftung hängt von dem Maßstab der übergeordneten Ansicht ab und davon, ob die Zuschneidegrenze der Detailansicht die übergeordnete Ansicht schneidet oder sich innerhalb dieser Ansicht befindet. Der Detailansichtsparameter Ausblenden in Maßstäben kleiner als legt fest, von welchem Maßstab an Details in anderen Ansichten ein- bzw. ausgeblendet werden sollen. Wenn eine Detailbeschriftung beispielsweise ab einem Maßstab von 1/4"=1'0" nicht mehr angezeigt werden soll, dann ist sie in einer Ansicht im Maßstab 1/8" = 1'-0" nicht zu sehen.
Alle Detailansichten, sowohl Detailausschnitte als auch Schnittansichten, werden im Projektbrowser als Detailansichten angezeigt.
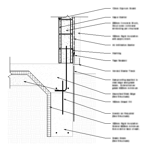
Die folgende Abbildung zeigt ein Beispiel für ein Wandschnittdetail mit Modellgeometrie als Unterlage (in Halbtondarstellung) sowie zusätzlichen 2D-Detailbauteilen, die über die Modellelemente gezeichnet wurden.
