In dieser Übung vervollständigen Sie das Innere des Modells, indem Sie in der unteren Ebene ein Treppenhaus hinzufügen und anschließend Geländer in der Eingangsebene hinzufügen und ändern.
|
Kategorie
|
Neue Benutzer |
|
Erforderliche Zeit
|
15 Minuten |
|
Verwendete Lernprogrammdateien
|
GSG_09_stairs_railings.rvt (Siehe Anmerkung in Schritt 1.) |
|
Ziele
- Erstellen einer Treppe zwischen der unteren Ebene und der Eingangsebene.
- Erstellen von Geländern mithilfe eines Versatzwerts und Auswählen von Modelllinien.
- Erstellen von Geländern mithilfe eines Versatzwerts und Zeichnen entlang von Modelllinien.
- Ändern des Geländertyps in ein Rohrgeländer.
Video ansehen
Erstellen von Treppen
- Öffnen Sie das Projekt GSG_09_stairs_railings.rvt.
Anmerkung: Es wird empfohlen, dass Sie für diesen Teil die bereitgestellte Übungsdatei verwenden, da Änderungen am Projekt vorgenommen wurden, um das Modell zu erweitern:
- Die Dachskizze wurde bearbeitet, sodass sie sich über den Eingangsvorbau erstreckt, und der Dachtyp wurde dahingehend geändert, dass eine stehende Metallverkleidung für die Außenfläche verwendet wird.
- Die Geschossdecke der Eingangsebene wurde bearbeitet, damit ein Eingangsvorbau hinzugefügt werden kann.
- Ein geneigter Fußweg, der zum Eingangsvorbau hochführt, wurde hinzugefügt. In der Skizze der Geschossdecke wurde ein Neigungspfeil verwendet, damit der Fußweg zum Gelände hinabführt.
- An der Ecke, an der die beiden Fassaden zusammentreffen, wurden die Pfosten von der Kante der einen Fassade entfernt. Der Typ für die Pfosten an der Kante der anderen Fassade wurde in einen Eckpfosten geändert.
- Der Typ wurde für die oberen Wände des Modells in eine Wand mit Außenverkleidung geändert.
- Innenwände wurden in einen typischen Innentrennwandtyp geändert.
- Stellen Sie sicher, dass der Grundriss 02 - Entry Level geöffnet ist.
- Klicken Sie auf Registerkarte Architektur
Gruppe Erschließung
(Treppe).
- Führen Sie in der Eigenschaftenpalette unter Abhängigkeiten folgende Schritte durch:
- Wählen Sie für die Basisebene 01 - Lower Level.
- Wählen Sie für die oberste Ebene 02 - Entry Level.
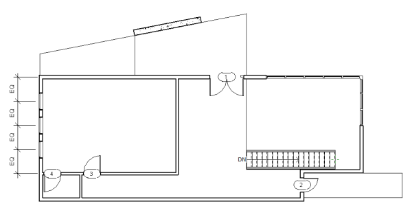
- Klicken Sie im östlichen Raum auf das X, um den Treppenlauf zu starten.
Dieses X wurde dem Projekt hinzugefügt und soll die Platzierung verdeutlichen.
- Bewegen Sie den Mauszeiger nach links, bis die QuickInfo angibt, dass keine Steigungen verbleiben, und klicken Sie, um den Endpunkt der Treppe anzugeben.
- Klicken Sie in der Gruppe Modus auf
(Bearbeitungsmodus beenden).
Erstellen von Geländern
- Klicken Sie auf Registerkarte Architektur
Gruppe Erschließung
Dropdown-Liste Geländer 
(Pfad skizzieren). Mit diesem Vorgang erstellen Sie ein Geländer oben an der Treppe.
- Klicken Sie unter Zeichnen auf
(Linien auswählen).
- Geben Sie in der Optionsleiste für Versatz 3" ein.
- Positionieren Sie den Mauszeiger auf der Kante der Geschossdecke links am oberen Ende der Treppe. Wenn links die gestrichelte Linie angezeigt wird, klicken Sie, um das Geländer zu platzieren.
- Wählen Sie das Geländer aus, klicken Sie auf den Endpunkt an der Ecke der Treppe, und ziehen Sie den Endpunkt über die ganze Treppe nach oben, wie in der Abbildung gezeigt:
- Klicken Sie in der Gruppe Modus auf
(Bearbeitungsmodus beenden).
- Klicken Sie auf Registerkarte Architektur
Gruppe Erschließung
Dropdown-Liste Geländer 
(Pfad skizzieren). Mit diesem Vorgang erstellen Sie ein Geländer auf dem Eingangsvorbau.
- Klicken Sie unter Zeichnen auf
(Linie).
- Geben Sie in der Optionsleiste für Versatz 3" ein, und wählen Sie Kette.
- Klicken Sie auf die Ecke der Außenwände rechts neben der Doppeltür, und bewegen Sie den Mauszeiger nach oben. Klicken Sie dann auf den Schnittpunkt der Wände, bewegen Sie den Mauszeiger nach links, und klicken Sie, um ein Geländer auf dem Eingabevorbau wie dargestellt zu erstellen:
- Klicken Sie in der Gruppe Modus auf
(Bearbeitungsmodus beenden).
- Klicken Sie auf Registerkarte Architektur
Gruppe Erschließung
Dropdown-Liste Geländer 
(Pfad skizzieren). Mit diesem Vorgang erstellen Sie ein Geländer auf der Rückseite.
- Klicken Sie unter Zeichnen auf
(Linie).
- Geben Sie in der Optionsleiste für den Versatz 3" ein, und vergewissern Sie sich, dass Kette ausgewählt ist.
- Platzieren Sie die Geländer auf der Rückseite. Beginnen Sie dabei in der unteren linken Ecke und zeichnen Sie gegen den Uhrzeigersinn, wie in der Abbildung gezeigt:
- Klicken Sie in der Gruppe Modus auf
(Bearbeitungsmodus beenden).
Ändern des Geländertyps
- Klicken Sie im Schnellzugriff-Werkzeugkasten auf
(Standard-3D-Ansicht).
- Vergrößern Sie das Geländer auf dem Eingangsvorbau.
- Wählen Sie das Geländer aus, klicken Sie mit der rechten Maustaste, und klicken Sie auf Alle Exemplare auswählen
Im gesamten Projekt.
- Wählen Sie in der Typenwahl Geländer - Rohr.
Teil 10: Erstellen von Ansichten