Note: The answer is referring to version 2015. This information may differ on other versions.
For the collision check the body is calculated in the following way:
- Get the middle point of the bolt
- Get the body at the middle point
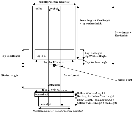
The body consists of 6 bodies:
- topSet
- bottomSet
- topTool
- bottomTool
- topBolt
- bottomBolt
- Top Tool Diameter
- It is taken from the database (AstorBase - Tools) if it exists, otherwise is calculated based on the following formula:
- bolt diameter * DataBase Default (Pattern_ToolDiameter)
- Bottom Tool Diameter
- It is taken from the database (AstorBase - Tools) if it exists, otherwise is calculated based on the following formula:
- bolt diameter * DataBase Default (Pattern_ToolDiameter)
- Binding length
- The grip length (Bolt - Advance Steel Properties - Length).
- Top Bolt Diameter and Bottom Bolt Diameter
- are equal (= bolt diameter).
In case a collision between a bolt and any other object is found, try to revert the bolt direction and check again. It is possible that the bolt no longer interferes with the object.
Calculated Body of the bolt is used for intersection with every body of the object from the model. If it is intersected with another body, it calculates the intersection body.
The dimensions (height, diameter) of the washers and nuts are in AstorBase - SetNutsBolts, and for Tool are in AstorBase - Tools. These dimensions depend on the definition of the bolts (AstorBase - SetOfBolts).