Dynamically build connectors by defining the connector parameters such as the number of pins, pin spacing, and pin values.
The Insert Connector tool generates a connector symbol from user-defined parameters. The symbol is created on the fly and inserted as a block insert into your active drawing file. Since they are created on an as needed basis, it eliminates the need for you to create and maintain a library of connector symbols.
Change drawing properties


. Find
Components dialog box, select Sequential.
Wire Numbers dialog box, New Wire Number Placement section, select In-Line. Add connectors to the drawing


. Find
Pin Spacing: 1.0
Pin Count: 15
Fixed Spacing
Pin List: 1
Insert All

The preview looks like the following image.

A preview outline of the connector displays for placement on the drawing. It shows rounded corners for the plug side of the connector. An “x” indicates the insertion point of the connector. An arrow indicates the plug side wire connection direction for plug/receptacle or plug-only connector inserts or shows the wire connection direction for a receptacle-only connector insert.
Specify insertion point or [Z=zoom, P=pan, X=wire crossing, V=horizontal/vertical, TAB=flip]:
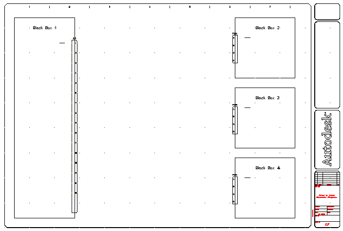
Select to place the connector in the middle of the right-hand border of Black Box 1

The connector was automatically assigned a component tag of PJ1.


. Find
Pin Spacing: 0.75
Pin Count: 4
Fixed Spacing
Pin List: A
Insert All
The preview looks like the following image.

Specify insertion point or [Z=zoom, P=pan, X=wire crossing, V=horizontal/vertical, TAB=flip]:
Select to place the connector in the middle of the left-hand border of Black Box 2

The connector was automatically assigned a component tag of PJ2.
The connectors are assigned tags PJ3 and PJ4 respectively.
