Take a temporary look at the dimension and alignment constraints in a view, to troubleshoot or modify elements in the model.
Video: Reveal Constraints
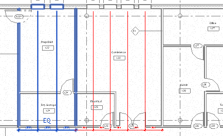
(Reveal Constraints). The Reveal Constraints drawing area displays a color border to indicate that you are in Reveal Constraints mode. All constraints display in color, and model elements display in half-tone (gray).
Graphics panel
Thin Lines). 
to exit Reveal Constraints mode.