When placing a view on a sheet, you can hide parts of the view to focus on one area.
Use one or both of the following techniques:
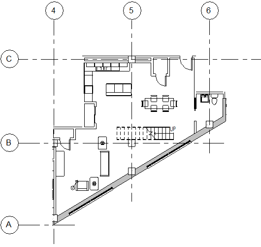
Duplicate.) Open the duplicate view, and apply crop regions and masking regions as needed. Then place the duplicate view on the sheet. In the following floor plan, a non-rectangular crop region hides irrelevant model geometry in the upper-right and upper-left corners of the apartment unit.
