Desplace rápidamente un componente a lo largo de un cable e inserte componentes secundarios.
Si el componente no se ha insertado en la posición correcta, puede aplicarle un desplazamiento rápido. Utilice la herramienta Desplazamiento rápido para seleccionar un componente o número de cable y desplazarlo hacia atrás y adelante a lo largo del cable mientras se mantiene todo conectado. Puede seleccionar un cable o una separación entera de circuitería y desplazarlos rápidamente a una nueva posición. Si hay componentes principales entre los elementos desplazados, se solicita si desea volver a etiquetar dichos componentes.
La herramienta Desplazamiento rápido funciona con números de cables, componentes, bornas, módulos de E/S de PLC, recodos en líneas de enlace de trazos, flechas de señales, cables y cables con bucles de intersección de cables.

Desplazamiento rápido de un componente


. Find
Seleccione componente, cable o número de cable para DESPLAZAMIENTO RÁPIDO:
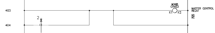
Seleccione el componente que se ha insertado en la referencia de línea 403.
El cursor se convierte en un cuadro.
Seleccione componente, cable o número de cable para DESPLAZAMIENTO RÁPIDO:
Desplace el cursor hacia la derecha y haga clic, o haga clic con el botón derecho para salir del comando
El componente se desplaza hacia su nueva posición.

Puede utilizar la herramienta Desplazamiento rápido para capturar un componente o un número de cable y desplazarlo hacia atrás y adelante en un cable. Puede capturar un cable o una separación de circuitería entera y desplazarlos rápidamente a una nueva posición, mientras se mantiene todo conectado.
Los pasos para insertar un componente principal y un componente secundario son los mismos, excepto en la anotación del símbolo.
Inserción de un componente secundario


. Find
Precise punto de inserción:
posicione el cursor en el cable en la referencia de línea 404 cerca del cable activo y haga clic en (1)

Aparecerá el cuadro de diálogo Insertar/editar componente secundario. Observe que AutoCAD Electrical no ha asignado automáticamente ningún nombre de etiqueta para el contacto de relé; en el cuadro de edición solo aparece un "CR" genérico. Determine el nombre de etiqueta del contacto de relé. Un contacto de relé es un componente secundario que debe enlazarse con una bobina de relé principal en un dibujo en el proyecto activo. El componente secundario recibe el mismo nombre de etiqueta que se encuentra en la bobina de relé principal.
Para asignar el nombre de etiqueta, haga clic en Principal/mismo nivel y designe el componente principal en el dibujo. O bien, haga clic en Dibujo o en Proyecto para realizar una selección en una lista de componentes con el mismo nombre de familia.
MCAB5 CR403 MASTER CONTROL RELAY

Los valores del componente principal se transfieren de manera inmediata al contacto.
Etiqueta de componente: CR403
Descripción: línea 1: CONTROL PRINCIPAL
Descripción: línea 2: RELÉ
Referencia cruzada: 403
Código de posición: MCAB5
Polos: polo 1: A1X
Polos: polo 2: A1Y

Se insertará el componente secundario. La referencia cruzada se realiza en tiempo real. La bobina se anota con el número de referencia de línea del nuevo contacto secundario. Del mismo modo, el contacto secundario se anota con la posición de referencia de línea de la bobina principal.
