Eche momentáneamente un vistazo a las restricciones de alineación y cota en una vista para modificar los elementos del modelo o solucionar los problemas relacionados con ellos.
Vídeo: Mostrar restricciones
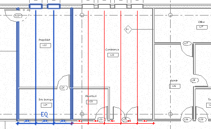
(Mostrar restricciones). El área de dibujo Mostrar restricciones muestra un contorno de color para indica que se encuentra en el modo Mostrar restricciones. Todas las restricciones se muestran en color y los elementos del modelo se muestran en tramado (gris).
grupo Gráficos
Líneas finas). 
para salir del modo Mostrar restricciones.