Una vista de detalle es una vista del modelo que, en otras vistas, aparece como llamada o sección. Esta clase de vista suele representar el modelo a escalas de detalle más precisas que la vista principal.
Una vista de detalle se puede crear como sección o llamada. Puede tener asignadas anotaciones de llamada y sección. Es decir, una vista de detalle como llamada también puede mostrar una sección en las vistas que intersequen las extensiones de vista de llamada. Por ejemplo, puede crear una vista de detalle de una intersección de muros como llamada. Y la misma llamada puede aparecer como vista en sección con anotaciones dentro de la vista en sección global.
Para que las anotaciones aparezcan en la vista en sección de construcción general, debe seleccionar la opción Vistas intersecantes para el parámetro de ejemplar Mostrar en. Puede configurar este parámetro en la paleta Propiedades.
La visibilidad de una etiqueta de vista de detalle depende de la escala de la vista principal, y de si el contorno de recorte de la vista de detalle interseca o se halla totalmente dentro del de la vista de origen. El parámetro de vista de detalle Ocultar en escalas con menos detalle que establece una escala en la cual los detalles se muestran u ocultan en otras vistas. Por ejemplo, si una etiqueta de detalle se define para ocultarse a escalas con menos detalle que 1/4”=1’0”, una vista cuya escala se defina en 1/8" = 1'-0" no aparecerá en la etiqueta de detalle.
Todas las vistas de detalle, tanto de llamada como en sección, aparecen en el Navegador de proyectos como vista de detalle.
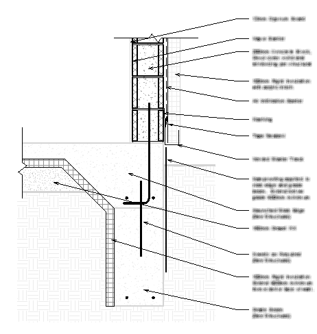
La siguiente ilustración muestra un ejemplo de un detalle de sección de muro con geometría de modelo como nivel subyacente (en tramado) y componentes de detalle 2D adicionales dibujados en los elementos de modelo.
