Une vue de détail est une vue du modèle qui apparaît comme un repère ou une coupe dans d'autres vues. Ce type de vue représente généralement le modèle selon une échelle plus détaillée que dans la vue parent.
Vous pouvez créer une vue de détail comme une coupe ou comme un repère. Des annotations de repère et de coupe peuvent lui être affectées. En d'autres termes, une vue de détail créée comme un repère peut également être affichée comme une coupe dans les vues qui croisent l'étendue de la vue de détail. Par exemple, vous pouvez créer un repère à partir de la vue de détail d'une intersection de mur. Ce repère peut apparaître sous forme de vue en coupe annotée et intégrée au sein de la vue en coupe globale du bâtiment.
Pour afficher les annotations dans la vue en coupe globale du bâtiment, vous devez sélectionner l'option Vues d'intersection pour le paramètre d'occurrence Montrer dans. Vous devez définir ce paramètre dans la palette des propriétés.
La visibilité d'une étiquette de vue de détail dépend de l'échelle de la vue parente et des caractéristiques de la limite de cadrage de la vue de détail (si elle croise la limite de cadrage de la vue parente ou si elle est totalement incluse dans celle-ci). Le paramètre de vue de détail Cacher pour une échelle plus petite que établit l'échelle à laquelle les détails sont affichés ou masqués dans les autres vues. Si, par exemple, une étiquette de détail est censée être masquée à des échelles dont le niveau de détail est plus faible que 1/4"=1'0", une vue dont l'échelle est réglée sur 1/8" = 1'-0" n'affiche donc pas l'étiquette de détail.
Toutes les vues de détail, qu'il s'agisse d'un repère ou d'une coupe, sont affichées dans l'arborescence du projet en tant que vues de détail.
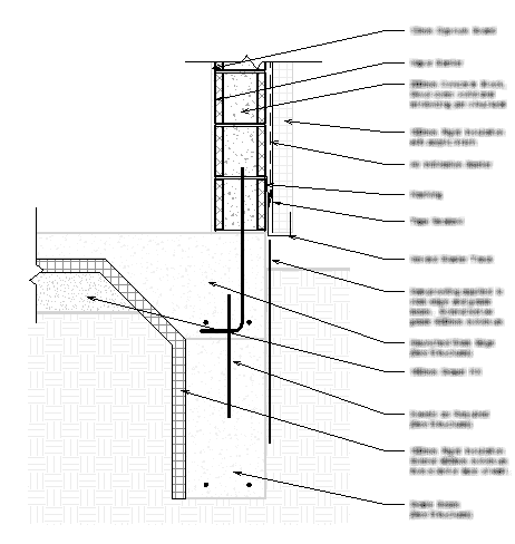
L'illustration suivante représente un détail de coupe de mur. La géométrie du modèle est sous-jacente (en demi-teinte) et des composants de détail 2D ont été dessinés sur les composants du modèle.
