Révélez temporairement les contraintes de cotes et d'alignement dans une vue afin de résoudre les problèmes ou de modifier des éléments dans le modèle.
Vidéo : affichage des contraintes
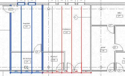
(Afficher les contraintes). La zone de dessin Afficher les contraintes affiche une bordure colorée pour indiquer que vous êtes en mode Afficher les contraintes. Toutes les contraintes s'affichent en couleur, et les éléments du modèle s'affichent en demi-teinte (gris).
groupe de fonctions Graphismes
Lignes fines). 
pour quitter le mode Afficher les contraintes.