Per escludere i componenti degli oggetti ai quali è assegnato un materiale specifico dal contorno continuo di una sezione 2D, attenersi alla procedura descritta di seguito.
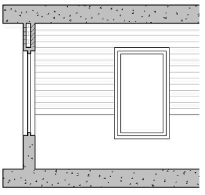
Quando si crea una sezione 2D è possibile visualizzare un componente di sezione denominato Contorno continuo. Il contorno continuo è l'unione di tutte le facce dell'oggetto tagliate dalla linea di sezione, fuse in un solo componente con un modello di tratteggio. Questa è una vista di sezione 2D usata di frequente.
Per default, tutti i componenti ai quali sono assegnati materiali vengono inclusi nel contorno continuo. È tuttavia possibile impostare l'esclusione dal contorno continuo di determinati materiali, ad esempio il vetro.

Contorno continuo di sezione 2D con vetro escluso (sinistra)
.
.
.
.
.