Calcolatore tolleranza: formule

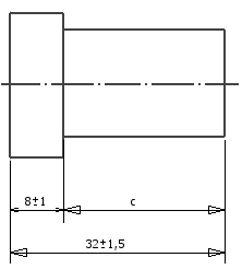
Derivare le equazioni di base per le catene di quote lineari chiuse dall'immagine seguente.

a = 32 ± 1,5 mm, b = 8 ± 1 mm

Elementi crescenti/decrescenti

Se aumenta l'elemento crescente, aumenterà anche l'elemento di chiusura. Se aumenta l'elemento decrescente, l'elemento di chiusura diminuirà a patto che gli altri elementi della catena non vengano alterati.

Elemento di chiusura:

1. c = a - b

Quota limite superiore dell'elemento di chiusura:

2. c max = a max - b min

Quota limite inferiore dell'elemento di chiusura:

3. c min = a min - b max

Tolleranza dell'elemento di chiusura (sottrazione dell'equazione 3 dall'equazione 2)

4. c max - c min = a max - a min - (b min - b max )

Quale

5. T c = T a + T b

Nota: La tolleranza dell'elemento di chiusura corrisponde alla somma delle tolleranze di tutti gli elementi delle catene di quote chiuse.

In generale, le tolleranze delle catene lineari soddisfano l'equazione seguente.

Analogamente, è possibile scrivere le equazioni 2 e 3 in un modulo generale.

La quota limite superiore dell'elemento di chiusura corrisponde ad una differenza della somma delle quote limite superiori degli elementi crescenti e della somma delle quote limite inferiori degli elementi decrescenti.

La quota limite inferiore dell'elemento di chiusura corrisponde ad una differenza della somma delle quote limite inferiori degli elementi crescenti e della somma delle quote limite superiori degli elementi decrescenti.

La quota nominale dell'elemento di chiusura può essere espressa mediante l'equazione 1, come nell'equazione seguente.

Limite deviazione superiore dell'elemento di chiusura.

Limite deviazione inferiore dell'elemento di chiusura.