È possibile creare viste di dettaglio per aggiungere informazioni su parti specifiche del modello.
Scheda Vistagruppo Crea (Dettaglio)
Scheda Vistagruppo Crea (Sezione)
Argomenti di questa sezione
Informazioni sulle viste di dettaglio
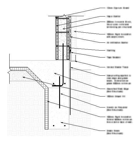
La vista di dettaglio è una vista del modello visualizzata come dettaglio o sezione in altre viste. In genere questo tipo di vista rappresenta il modello in una scala di dettaglio maggiore rispetto alla vista principale
Creazione di una vista di dettaglio
È possibile creare un dettaglio da una vista di pianta, di sezione o di prospetto e quindi aggiungere componenti di dettaglio utilizzando la geometria del modello come base. Quando si crea un dettaglio o un dettaglio di sezione, è possibile stabilire un riferimento ad un'altra vista di dettaglio o di disegno del modello.
Duplicazione di una vista di dettaglio
Quando si duplica una vista, è possibile specificare se è necessario copiare nella nuova vista sia la geometria del modello, sia la geometria dei dettagli.
Salvataggio di una vista in un progetto esterno
È possibile salvare una vista in un progetto esterno di Revit. Ciò comporta il salvataggio in un nuovo file di progetto della vista e di tutti gli elementi visibili al suo interno, inclusi gli elementi del modello e specifici della vista.
Proprietà dell'istanza della vista di dettaglio
È possibile controllare la modalità di visualizzazione dell'etichetta della vista di dettaglio mediante la modifica delle proprietà di istanza della vista.