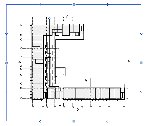
Modifica di una regione di taglio

Le regioni di taglio consentono di nascondere parti del modello in una vista.

Le regioni di taglio possono essere rettangolari o non rettangolari.

  1. In una vista pianta, prospetto o sezione, selezionare una regione di taglio e fare clic sulla scheda Modifica | <tipo di vista> gruppo Modalità Modifica ritaglio.
  2. Utilizzare gli strumenti dei gruppi Modifica e Disegna per modificare la regione di taglio in base alle esigenze. È possibile modificare o eliminare le linee esistenti o disegnare una forma totalmente diversa.
  3. Al termine dell'operazione, fare clic su (Termina modalità di modifica).
Nota: Se si desidera ripristinare la forma rettangolare di un ritaglio modificato, selezionare il ritaglio e fare clic sulla scheda Modifica | <tipo di vista> gruppo Modalità Ripristina ritaglio.