既存のコネクタをストレッチし、コネクタ ピンの追加、移動、および入れ替えを行います。
[コネクタ挿入]ツールバーには、コネクタやコネクタピンを修正するツールがあります。コネクタ内部に存在するピンを追加、削除、または移動することもできます。
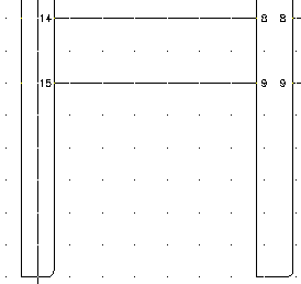
既存のコネクタをストレッチする


の順にクリックします。 検索
ストレッチするコネクタの端を指定: PJ1 の下部を選択します。
目的点を指定:
ブラック ボックス 1 の下に向かって、コネクタを引き下げます。


コネクタ ピンの追加


の順にクリックします。 検索
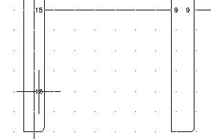
オブジェクトを選択: PJ1 を選択します。
新しいピンの挿入場所を指定 または [リセット(R)] <16>:
PJ1 のピン 15 から 4 区画下を選択し、右クリックして[Enter]を押します。
利用できる次のピン番号(16)が選択された地点に挿入されます。



の順にクリックします。 検索
オブジェクトを選択: PJ6 を選択します。
新しいピンの挿入場所を指定 または [リセット(R)] <10>:
PJ1 の新しいピン 16 を選択してピン 10 インラインを挿入し、右クリックして[Enter]を押します。

コネクタ ピンを修正する


の順にクリックします。 検索
移動するコネクタ ピンを選択: PJ1 のピン 16 を選択します。
ピン 16 の移動先を指定: PJ1 の 2 つのスペースを選択します。
移動するコネクタ ピンを選択: PJ6 のピン 10 を選択します。
ピン 10 の移動先を指定:
PJ1 のピン 16 を選択し、ピン 10 インラインを移動して右クリックします。



の順にクリックします。 検索
コネクタ ピンを選択: PJ1 のピン 16 を選択します。
コネクタ ピンを選択: 入れ替える: PJ1 のピン 12 を選択して右クリックします。


の順にクリックします。 検索
逆向きにするコネクタを選択: 一番上のインライン コネクタを選択し、右クリックします。



の順にクリックします。 検索
[ピン間隔]: 1.0
[ピン数]: 2
[固定間隔]
[ピン リスト]: 1
[すべて挿入]
挿入点を指定 または[ズーム(Z)、画面移動(P)、配線交差(X)、水平/垂直(V)、反転(Tab)]:
ブラック ボックス 1 の最上部をクリックして、コネクタを配置します。


の順にクリックします。 検索
回転するコネクタを選択または[HOLD]:
新しいコネクタを選択し、右クリックして[入力]を選択します。
