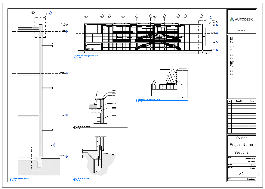
シート上のビュー タイトル

ビュー タイトルに文字属性を指定したり、ビュー タイトルに含める情報を定義したり、シートからビュー タイトルを省略します。

属性は、シート上の個々のビュー タイトルに定義することができます。また、ビュー タイトルのタイプを定義し、それらを使用してビュー タイトルに標準設定を適用することもできます。