詳細ビューは、その他のビューで吹き出しまたは断面図として表示されるモデルのビューです。このビューのタイプは、通常は親ビューよりも詳細な尺度でモデルを表示します。
詳細ビュー は断面図または吹き出しとして作成することができます。断面図と吹き出しの両方の注釈をこれに割り当てることができます。言い換えれば、吹き出しとして作成された詳細ビューは、吹き出しビューの範囲と交差するビューにも断面図として表示されます。たとえば、壁交点の詳細ビューを吹き出しにすることができます。この同じ吹き出しを、建築断面図ビュー全体に、注釈付きの断面図ビューとして表示できます。
建築断面図ビュー全体に表示する注釈の場合、[表示]インスタンス パラメータで[交差ビュー]オプションを選択する必要があります。この設定はプロパティ パレットで設定します。
詳細ビュー タグの表示は、親ビューの尺度に依存し、詳細ビューのトリミング境界が交差したり完全に親ビューの中に入っているかどうかによって変わります。詳細ビュー パラメータ[これより粗い尺度は非表示]で、他のビューで表示/非表示にする詳細の尺度を設定できます。たとえば、詳細タグが 1/4”=1’0” より粗いものを非表示にするように設定されている場合、1/8" = 1'-0" に尺度が設定されているものの、詳細タグは表示されません。
すべての詳細ビューでは、図面が吹き出しか断面図かにかかわらず、[プロジェクト ブラウザ]に詳細ビューとして表示されます。
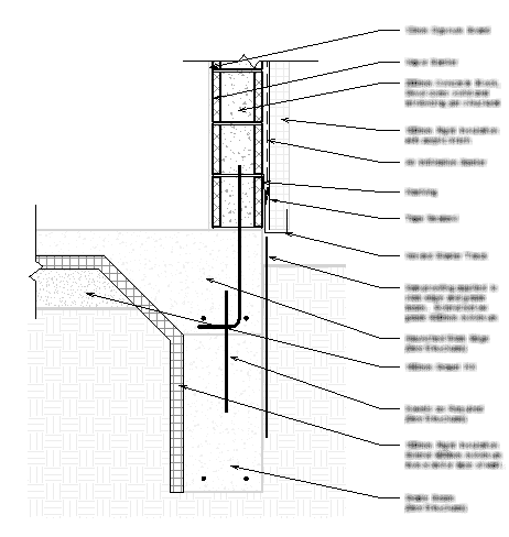
次の図は、アンダーレイ(ハーフトーン)のモデル ジオメトリで、壁の断面図の詳細の例を示しています。また、モデル要素上に描かれた追加の 2D 詳細コンポーネントを示しています。
