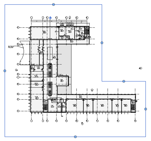
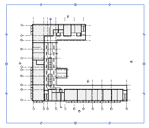
トリミング領域を編集する
ビュー内のモデルのパーツを非表示にするには、トリミング領域を使用します。
長方形のトリミング領域や長方形でないトリミング領域を使用することができます。
平面図、立面図、または断面図ビューで、トリミング領域を選択し、[編集修正 | <ビュー タイプ>]タブ
[モード]パネル
[トリミングを編集]をクリックします。
[修正]パネルと[描画]パネルのツールを使用し、必要に応じてトリミング領域を編集します。既存の線分を修正するか、線分を削除してまったく異なる形状をスケッチします。
編集が終了したら
[編集モードを終了]をクリックします。
注:
編集したトリミングを長方形の形状にリセットするには、トリミングを選択し、[編集修正 | <ビュー タイプ>]タブ
[モード]パネル
[トリミングをリセット]をクリックします。
親トピック:
ビューに表示される要素をコントロールする
関連タスク
トリミング領域のサイズをイメージで変更する
トリミング領域のサイズを明示的に変更する
トリミング領域の表示と非表示を切り替える
関連情報
スケッチ