구속조건 표시
뷰의 치수 및 정렬 구속조건을 잠시 살펴보고 모델의 문제를 해결하거나 요소를 수정합니다.
주:
이 특징 또는 기능은 현재
Revit 2015 소프트웨어 릴리즈
에 대한 Autodesk Maintenance Subscription 및 Autodesk Desktop Subscription 고객만 사용할 수 있습니다.
비디오: 구속조건 표시
이 비디오를 보려면 JavaScript를 활성화하십시오.
뷰 조절 막대에서
(구속조건 표시)를 클릭합니다.
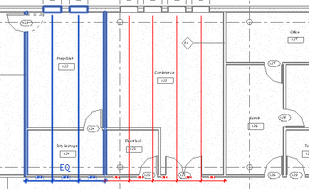
구속조건 표시 도면 영역은 색상 경계를 표시하여 구속조건 표시 모드에 있음을 나타냅니다. 모든 구속조건은 색상으로 표시되고 모델 요소는 중간색(회색)으로 표시됩니다.
주:
이 모드에서 구속조건을 보기 쉽게 하려면 가는 선 표시 옵션이 선택되지 않았음을 확인하십시오(뷰 탭
그래픽 패널
가는 선).
구속조건을 선택하여 구속된 요소를 강조 표시합니다.
다음 예제에서는 왼쪽의 구속조건이 선택되고 구속된 2개 벽과 2개 창도 강조 표시됩니다.
선택 사항: 간단히 구속조건을 삭제하거나 잠금 해제하여 구속조건을 제거합니다.
주:
중간색으로 요소를 표시하기 위해 스케치 모드에서 추가된 구속조건. 구속조건을 수정하거나 제거하려면 요소를 두 번 클릭하여 스케치 모드로 들어가십시오.
구속조건 표시 모드를 종료하려면 뷰 조절 막대에서
을 클릭합니다.
상위 주제:
구속조건
관련 태스크
구속조건 제거
관련 정보
구속조건 정보