시트에 뷰를 배치할 때 뷰의 일부를 숨겨 한 영역에 초점을 맞출 수 있습니다.
다음 방법 중 하나 또는 둘 다를 사용합니다.
- 자르기 영역: 건물 모델의 특정 영역에 뷰 초점을 맞추려면 자르기 영역을 사용합니다.
- 마스킹 영역: 관련되지 않은 뷰 영역(직사각형 자르기 영역 내의)을 숨기려면 마스킹 영역을 사용합니다.
팁: 뷰의 원래 버전을 유지하려면 먼저 복제 뷰를 작성합니다. (프로젝트 탐색기에서 뷰 이름을 마우스 오른쪽 버튼으로 클릭한 다음 뷰 복제

복제를 클릭합니다.) 복제 뷰를 열고 필요에 따라 자르기 영역과 마스킹 영역을 적용합니다. 그런 다음 복제 뷰를 시트에 배치합니다.
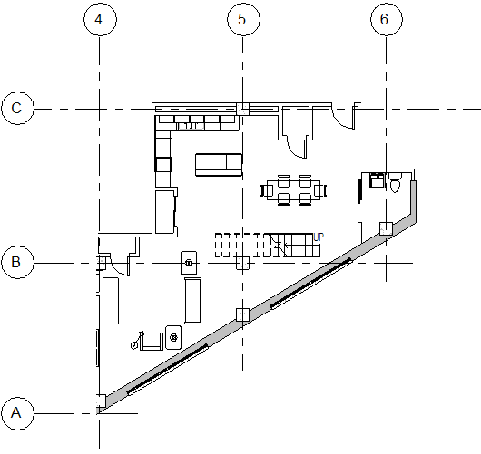
건축 예제
다음 평면에서 비직사각형 자르기 영역은 아파트 단위의 오른쪽 상단 및 왼쪽 상단 코너에서 관련 없는 모델 형상을 숨깁니다.