이 연습에서는 시트를 작성하고 여러 뷰를 시트에 추가합니다.
|
카테고리
|
새 사용자 |
|
소요 시간
|
10분 |
|
사용되는 튜토리얼 파일
|
GSG_13_sheets.rvt |
|
단면 뷰를 시트에 추가하고 평면뷰의 단면 표시가 시트 정보를 포함하도록 업데이트됩니다.
목표
- 제목 블록 템플릿을 사용하여 시트를 작성합니다.
- 뷰를 시트에 추가하고 뷰 배치 및 제목 형식을 수정합니다.
비디오 보기
시트 작성
- GSG_13_sheets.rvt 프로젝트를 엽니다.
- 뷰 탭
시트 구성 패널
(시트)를 클릭합니다.
- 새 시트 대화상자의 제목 블록 선택 아래에서 E1 30 x 42 수평 : E1 30 x 42 수평을 선택하고 확인을 클릭합니다.
- 제목 블록을 클릭하여 시트를 선택한 다음 시트 번호를 클릭하고 A1을 입력한 다음 Enter 키를 누릅니다.
시트에 뷰 추가
- 프로젝트 탐색기의 3D 뷰 아래에서 건물 뷰 뷰 제목을 클릭하여 시트의 왼쪽 상단 코너로 끈 다음 마우스 버튼을 놓습니다.
더 쉽게 배치할 수 있도록 뷰의 윤곽이 표시됩니다.
- 뷰를 클릭하여 배치합니다.
- 같은 방법을 사용하여 02 - 기본 레벨 평면뷰를 시트로 끌고 건물 뷰 뷰 아래 왼쪽으로 정렬하여 배치합니다.
주: 뷰를 시트에 더 쉽게 정렬할 수 있도록 파선이 표시됩니다.
- 같은 방법을 사용하여 01 - 하위 레벨 평면뷰를 02 - 기본 레벨 뷰 아래로 끌고 뷰를 중앙에 정렬될 때까지 오른쪽으로 약간 이동한 다음 뷰를 클릭하여 배치합니다.
- 시트 외부를 클릭하여 뷰를 선택 취소합니다.
- 시트의 01 - 하위 레벨 평면뷰에 대한 뷰 제목을 클릭하고 왼쪽으로 끌어 위의 뷰 제목에 정렬합니다. 파선을 사용하면 정렬에 도움이 됩니다.
- Esc 키를 누릅니다.
- 시트에서 (제목만이 아니라) 01 - 하위 레벨 평면뷰를 선택하고 오른쪽 끝점을 왼쪽으로 끌어 수평 제목 선을 단축합니다.
- 같은 방법을 사용하여 다른 2개의 뷰에 대한 선을 단축합니다.
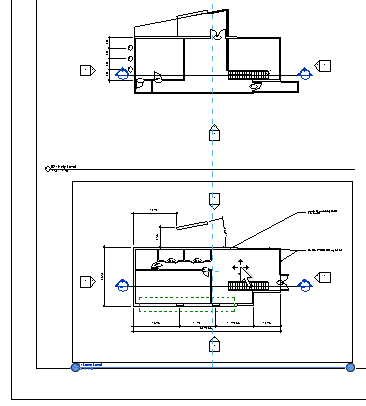
- 프로젝트 탐색기의 단면도(건물 단면) 아래에서 단면 1 뷰 제목을 클릭하고 뷰를 시트에 배치합니다.
- 시트에서 01 - 하위 레벨 평면뷰에 대한 단면 표시로 확대합니다. 단면 표시가 업데이트되어 건물 단면 뷰가 A1 시트에 배치된 네 번째 뷰임을 나타냅니다.
이 연습은 시작하기 안내서의 마지막 연습입니다.