Za pomocą filtrów współrzędnych można wyodrębniać pojedyncze wartości współrzędnych punktów z istniejących obiektów.
Filtry współrzędnych określają nowe położenie w układzie współrzędnych przy użyciu wartości X z jednej lokalizacji, wartości Y z drugiej lokalizacji, a dla współrzędnych 3D, wartość Z z trzeciej lokalizacji. Jeżeli filtry współrzędnych są stosowane z trybami lokalizacji, to wyodrębniają wartości współrzędnych istniejących obiektów.
Filtry współrzędnych są powszechnie używane do lokalizacji środka prostokąta i do wyznaczenia rzutowania punktu 3D na płaszczyznę XY LUW.
Aby określić filtr w wierszu polecenia, wprowadź kropkę i co najmniej jedną z liter X, Y lub Z. Następna część ograniczona jest do określonych wartości współrzędnych.
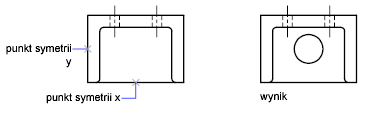
Na rysunku poniżej otwór w płytce mocującej został wyśrodkowany w prostokącie przez znalezienie wartości współrzędnych X, Y punktów symetrii poziomych i pionowych segmentów linii płytki.

Oto sekwencja dla wiersza polecenia:
Polecenie: okrąg
Określ środek okręgu lub [3p/2p/Ssr (sty sty promień)]: .x
punktu: sym
Wybierz linię poziomą na dolnej krawędzi płytki
punktu: (potrzebne YZ): sym
Wybierz linię pionową na lewej krawędzi płytki
Średnica/<Promień> Określ promień otworu
Filtry współrzędnych działają tylko wtedy, gdy program monituje o wprowadzenie punktu. Próba użycia filtru współrzędnych w wierszu polecenia powoduje wyświetlenie komunikatu o błędzie.
Ten przykład pokazuje, jak wykorzystać filtry współrzędnych do utworzenia obiektu typu punkt (centroidy) w środku obiektu 3D. Ukryte linie zostały usunięte w celu zwiększenia czytelności. Wartość współrzędnej X nowego punktu jest pobierana z pierwszej określonej lokalizacji, wartość Y z drugiej lokalizacji, a wartość Z z trzeciej. Trzy wartości zostały połączone w celu uzyskania wartości współrzędnych nowego punktu.
Polecenie: punkt
Punkt: .x
z sym
wybranego obiektu 1)
(potrzebne Z): .y
z sym
wybranego obiektu (2)
(potrzebne Z): sym
wybranego obiektu 3)
