Utilize a ferramenta Exibir linhas ocultas por elementos para exibir elementos do modelo e elementos de detalhe que estão obscurecidos por outros elementos na vista atual.
A ferramenta Exibir linhas ocultas por elemento fornece uma substituição para a exibição gráfica de elementos individuais na vista atual. Você pode utilizar esta ferramenta para os elementos cujas categorias tenha a subcategoria Linhas ocultas.
Nota: A ferramenta Exibir linhas ocultas por elemento não está disponível para:
- Vistas em perspectiva.
- Vistas cujo parâmetro Exibir linhas ocultas na vista está definido como Tidas ou Nenhuma. Precisa ser definido como <Por disciplina >.
- Elementos em modelos vinculados
- O Revit MEP, ou para vistas no Autodesk Revit quando o parâmetro Disciplina estiver definido como Elétrica, Mecânica ou Hidráulica.
Por exemplo, você tem uma entrada na elevação sul, e deseja mostrar um contorno desta entrada usando linhas ocultas na elevação norte.
- Abra a vista na qual deseja exibir linhas ocultas para um elemento obscurecido.
- (Se necessário) Para exibir suas propriedades na paleta Propriedades, clique com o botão direito do mouse em uma área vazia da vista, e clique em Propriedades.
- Na paleta Propriedades, para Exibir linhas ocultas, selecione<Por disciplina>.
Nota: Linhas ocultas especificadas usando a ferramenta Exibir linhas ocultas por elemento, somente são exibida quando o parâmetro da vista Exibir linhas ocultas estiver definido como <Por disciplina>.
- Na Barra de controle da vista, clique em Estilo visual: Estrutura de arame.
O estilo Estrutura de arame permite selecionar o elemento oculto para ser exibido.
- Clique na guia Vista
painel Gráficos
(Exibir linhas ocultas por elemento).
- (Opcional) Para exibir linhas ocultas para múltiplos elementos, na Barra de opções, selecione Múltipla seleção.
- Selecione um elemento que está ocultando outro elemento.
- Selecione um ou mais elementos obscurecidos.
- Na barra de controle da vista, para Estilo visual, selecione um estilo diferente de Estrutura de arame.
Arestas obscurecidas e linhas para estes elementos são exibidas como linhas ocultas.
- (Opcional) Para reverter os efeitos desta ferramenta, altere o estilo visual para Estrutura de arame e clique na guia Vista
painel Gráficos
(Remover linhas ocultas por elemento).
A seguir, selecione o elemento que irá ocultar o elemento obscurecido, selecione os elementos obscurecidos e altere novamente o estilo visual.
- Clique em Modificar para sair da ferramenta Linhas ocultas.
Para alterar os estilos utilizados para exibir linhas ocultas no projeto, use a caixa de diálogo Estilos de objeto.
Para somente alterar os estilos utilizados para exibir linhas ocultas nesta vista, use a caixa de diálogo Visibilidade/Gráficos.
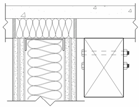
Exemplo: Mostrar linhas ocultas de componentes de detalhe
O exemplo a seguir ilustra os resultados após utilizar Exibir linhas ocultas e ao selecionar o montante 4x6 e um parafuso. As linhas ocultas para um parafuso são exibidas, enquanto as linhas do segundo parafuso são obscurecidas.

Nota: Os objetos têm de estar na ordem correta. Não é possível ocultar as linhas de um parafuso que esteja no topo de um montante de 4X6. Primeiro, o parafuso tem de ser enviado para trás do montante 4x6 para poder ser obscurecido. Para exibir o parafuso com uma linha oculta, selecione o montante 4x6 e, em seguida, selecione o parafuso.