Ao colocar uma vista em uma folha, é possível ocultar partes da vista para focar em uma área:
Use uma ou mais das seguintes técnicas:
- região de recorte: use a região de recorte para focar a vista em uma determinada área do modelo de construção.
- regiões de máscara: use as regiões de máscara para ocultar áreas na vista (dentro de uma região de recorte retangular) que não sejam relevantes.
Dica: Se você deseja reter a versão original da vista, crie primeiro uma vista duplicada. (No Navegador de projeto, clique com o botão direito no nome da vista e clique em Duplicar vista

Duplicar). Abra a vista duplicada e aplique regiões de recorte e regiões de máscara, como necessário. Em seguida, coloque a vista duplicada na folha.
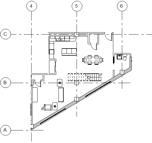
Exemplo de arquitetura
Na planta de piso a seguir, a região de recorte não retangular oculta a geometria irrelevante do modelo no canto superior direito e esquerdo da unidade de apartamento.