Examine temporariamente a cota e as restrições de alinhamento em uma vista, para solucionar ou modificar elementos no modelo.
Vídeo: Exibir restrições
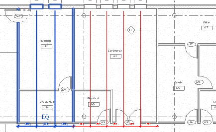
(Exibir restrições). A área de desenho Exibir restrições exibe uma borda colorida para indicar que você está no modo Exibir restrições. Todas as restrições são exibidas em cor e os elementos do modelo são exibidos em meio-tom (cinza).
painel Gráficos
Linhas finas). 
para sair do modo Exibir restrições.