Deep-beam calculations (according to the Polish RC code, apart from the typical horizontal and vertical reinforcement) can generate additional reinforcement zones in the vicinity of supports and in areas where concentrated loads are applied (such as on a distribution area or at a point). This enables the structure to safely carry the stresses concentrating in these areas. To calculate this, the following steps are followed.
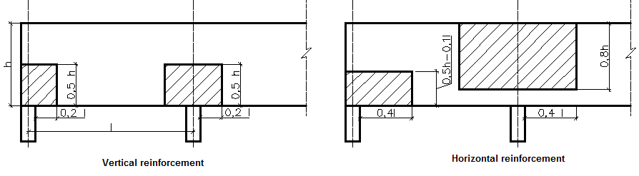
Dimensions of near-support zones depend on the geometry and support method of a deep beam.
Deep beam supported by columns, with one span

Values in parentheses are given for h ≥ 2l.
Deep beam supported by columns, with several spans, for h ≥ l/2

Values in parentheses are given for h ≥ l.
Deep beam supported by columns, with several spans, for h < l/2

In the case of deep beams supported by pilasters, these principles are applied as for the column support.
Deep beam with a fixed support (identical horizontal and vertical reinforcement zone dimensions)

The value in parentheses is for h ≥ ln, where ln denotes a clear distance between supports.
Dimensions of a reinforcement zone where a concentrated force is applied are determined as follows.

Designations in the drawing:
a - Width of load distribution (defined along with a force value).
b - Thickness of a deep-beam.
Simultaneously, the dimension of such zone must be greater than 1 meter.