Precast-Single Tee

Precast-Single Tee

Figure 187: Precast-Single Tee Properties

Figure 188: Precast-Single Tee Cross Section

Figure 189: Precast-Single Tee Cross Section 2

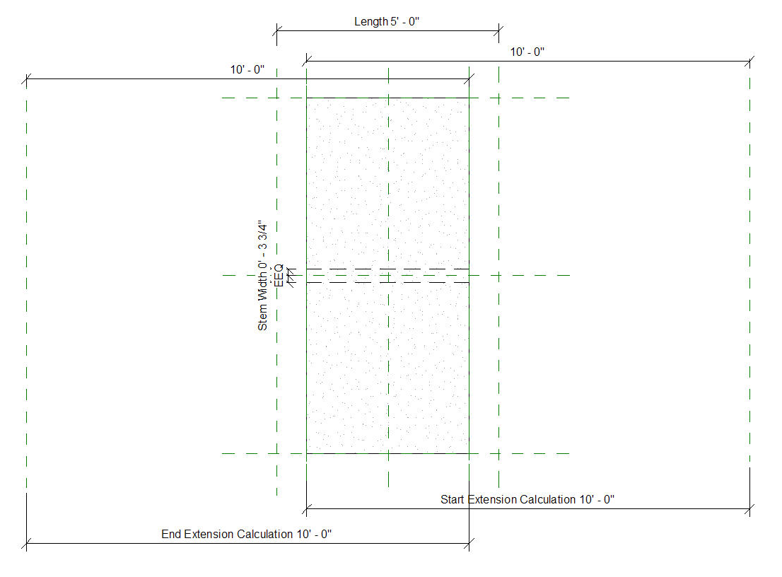
Figure 190: Precast-Single Tee