从其他 CAD 程序中导入绘图视图
可以从其他 CAD 程序中导入视图并将其用作
Revit
图纸视图。 然后可以将绘图视图作为详图索引或剖面的参照,并将其放置在施工图文档集的图纸上。
单击“视图”选项卡
“创建”面板
(绘图视图)。
为新绘图视图输入名称和合适的比例。
单击“插入”选项卡
“导入”面板
(导入 CAD)。
选择详图和 CAD 格式。
如果是在详图视图中,请选择“仅当前视图”选项。
注:
如果是在绘图视图中,则自动进行选择。
单击“打开”以放置 CAD 详图。
如果需要,可在图纸上拖放此视图。
如果需要,在放置详图索引或剖面时,可参照此视图。
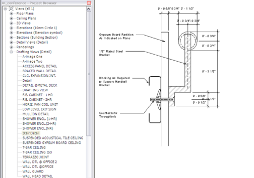
导入的绘图视图的建筑示例
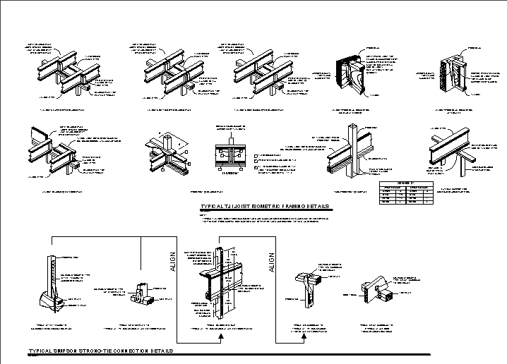
导入的绘图视图的结构示例
父主题:
绘图视图
相关概念
关于绘图视图
关于详图库
相关任务
创建参照详图索引
创建参照剖面
将视图添加到图纸