關於在圖紙上隱藏視圖的部分
在圖紙上放置視圖時,可隱藏視圖的各個部分,以將焦點集中於一個區域。
請使用下列一或兩個技術:
裁剪區域
: 使用裁剪區域,可將視圖的焦點集中於建築模型的特定區域。
遮罩區域
: 使用遮罩區域,可隱藏視圖中不相關的區域 (矩形裁剪區域內)。
提示:
若要保留原始版本的視圖,請先建立複製視圖。(在專案瀏覽器中,於視圖名稱上按一下右鍵,然後按一下「複製視圖」
「複製」。)開啟複製視圖,並依需要套用裁剪區域和遮罩區域。然後將複製視圖放置在圖紙上。
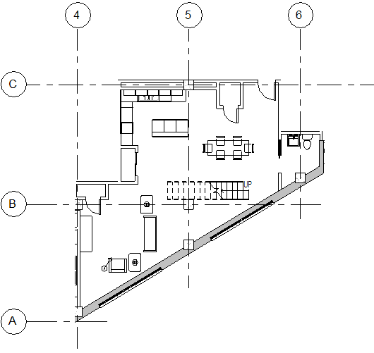
建築範例
在下列樓板平面圖中,非矩形裁剪區域隱藏部門單位右上角和左上角中的不相關模型幾何圖形。
結構範例
上層主題:
圖紙
相關概念
關於裁剪區域
遮罩區域