Tvorba kusovníku

Kusovník používá výchozí formát daný stylem kusovníku asociovaným s aktivní normou kreslení.

Když vytvoříte kusovník výběrem pohledu členu iSestavy, je výchozím nastavením člen v pohledu. Sloupec Množství je pro člen zobrazen v kusovníku, když byl zadán ve stylu. Když vytvoříte kusovník vyhledáním iSestavy, je výchozí nastavení kusovníku pro aktivní člen.

Tip: Kusovník lze zkopírovat a vložit do jiného výkresového listu nebo výkresu. Kusovníky lze také táhnout.
  1. Na pásu karet klikněte na kartu Poznámka panel Tabulka Kusovník.
  2. V dialogu Kusovník vyberte zdroj kusovníku:
    • Chcete-li vytvořit kusovník pro výkresový pohled, vyberte výkresový pohled v grafickém okně.
    • Chcete-li vytvořit kusovník ze zdrojového souboru, klikněte v dialogu Kusovník na tlačítko Procházet a otevřete soubor.
  3. Vyberte příslušný pohled rozpisky pro tvorbu kusovníků a pozic:
    Poznámka: Aby byl k dispozici v případě kusovníku, je nutné, aby byl v rozpisce zdrojového modelu aktivován pohled Strukturovaný nebo pohled Pouze součásti.
  4. V poli Zalomení tabulky určete směr zalomení. Pokud chcete, zapněte možnost Povolit automatické zalomení a nastavte maximální počet řádků kusovníku nebo počet částí kusovníku.
  5. Kliknutím na tlačítko OK uzavřete dialog Kusovník.
  6. Chcete-li umístit kusovník, klikněte ve výkresu. Kusovník můžete přichytit k hranám nebo rohům listu nebo k rohovému razítku.

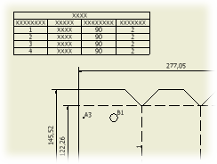
    Názorná ukázka umístění kusovníku

Tip: Chcete-li posunout kusovník, klikněte na něj a přetáhněte jej do nového místa.