Ermöglicht eine vorübergehende Anzeige der Bemaßungs- und Ausrichtungsabhängigkeiten in einer Ansicht, wenn Probleme behoben oder Elemente im Modell geändert werden sollen.
(Abhängigkeiten anzeigen).
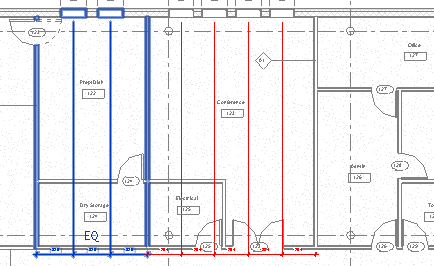
Wenn Sie sich im Modus Abhängigkeiten anzeigen befinden, wird dies durch einen farbigen Rand um den Zeichenbereich gekennzeichnet. Alle Abhängigkeiten werden farbig, Modellelemente in Halbtondarstellung (grau) angezeigt.
Gruppe Grafiken 
Feine Linien).

, um den Modus Abhängigkeiten anzeigen zu beenden.