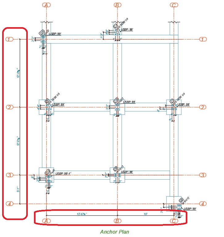
Grid dimension in overview drawings between balloon and steel objects

The dimension lines in overview drawings with grids are placed between the steel objects and the grid balloons if they fit.