The view range is a set of horizontal planes that control the visibility and display of objects in a plan view.
Every plan view has a property called view range, also known as a visible range. The horizontal planes that define the view range are Top, Cut Plane, and Bottom. The top and bottom clip planes represent the topmost and bottommost portion of the view range. The cut plane is a plane that determines the height at which certain elements in the view are shown as cut. These 3 planes define the primary range of the view range.
View depth is an additional plane beyond the primary range. Change the view depth to show elements below the bottom clip plane. By default, the view depth coincides with the bottom clip plane.
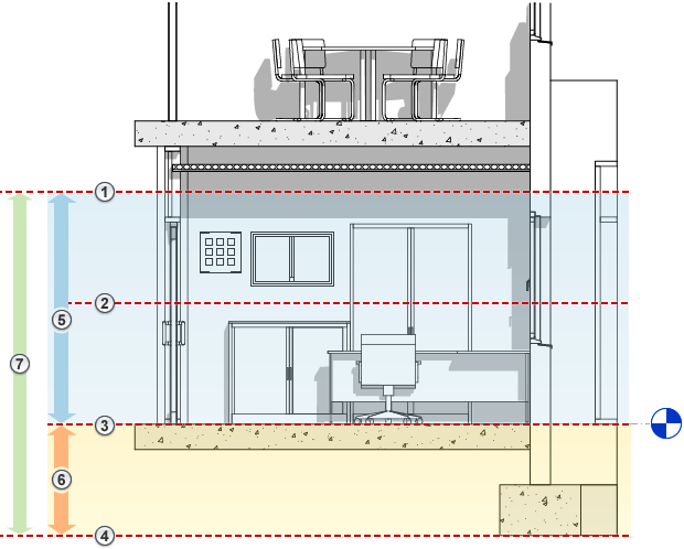
The following elevation shows the view range of a plan view: Top
, Cut plane
, Bottom
, Offset (from bottom)
, Primary Range
, and View Depth
.
The plan view on the right shows the result for this view range.
![]() |
![]() |
In a plan view, Revit LT uses the following rules to display elements that are intersected by the cut plane:
Exceptions for the display of elements intersected by the cut plane include the following:
The 6 feet (or 2 meters) are measured from the top of the bounding box to the bottom of the primary view range. For example, if you create a wall whose top is 6 feet above the bottom clip plane, the wall is cut at the cut plane. When the top of the wall is less than 6 feet, the entire wall shows as projection even where it intersects the cut plane. This behavior always occurs when the Top Constraint property for the wall is specified as Unconnected.
In the following elevation, blue highlighting indicates elements that intersect the cut plane.
The plan view on the right shows the following:
Elements that are drawn using the cut line weight. (walls, door, and window)
Elements that are drawn using the projection line weight because they are non-cuttable (casework).
![]() |
![]() |
In a plan view, Revit LT draws these elements using the projection line weight of the element category.
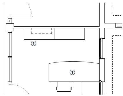
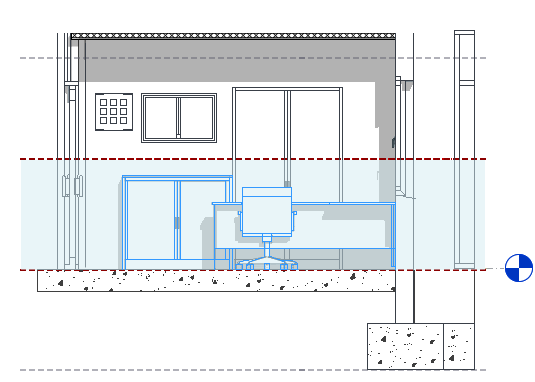
In the following elevation, blue highlighting indicates elements that are below the cut plane and above the bottom clip plane.
The plan view on the right shows the following:
Elements that are drawn using the projection line weight because they are not intersected by the cut plane. (cabinet, desk, and chair)
![]() |
![]() |
Elements within the view depth are drawn using the <Beyond> line style regardless of the element's category.
Exceptions: Floors, structural floors, stairs, and ramps located outside the view range use an adjusted range that is 4 feet (about 1.22 meters) below the bottom of the primary range. Within this adjusted range, the elements are drawn using the projection line weight for the category. If they exist outside this adjusted range but within the view depth, these elements are drawn using the <Beyond> line style.
For example, in the following elevation, blue highlighting indicates elements that occur below the bottom clip plane and within the view depth.
The plan view on the right shows the following:
An element (foundation) within the view depth that is drawn using the <Beyond> line style.
An element that is drawn using the projection line weight for its category, because it meets the exception conditions.
![]() |
![]() |
These elements are not displayed in a plan view unless their categories are window, casework, or generic model. Elements in these 3 categories are drawn using the projection line weight as viewed from above.
For example, in the following elevation, blue highlighting indicates elements that occur between the top of the view range and the cut plane.
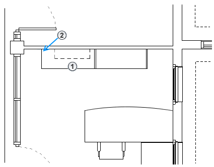
The plan view on the right shows the following:
Wall-mounted casework that is drawn using the projected line weight. In this case, the dashed line style for projection lines is defined in the casework family.
The wall sconce (a lighting category) that is not drawn in the plan because its category is not window, casework, or generic model.
![]() |
![]() |