Create detail views to add more information to specific parts of the model.
View tabCreate panel (Callout)
View tabCreate panel (Section)
Topics in this section
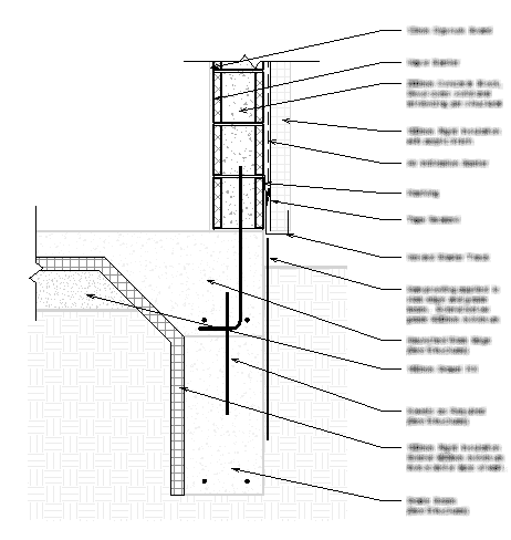
About Detail Views
A detail view is a view of the model that appears as a callout or section in other views. This type of view typically represents the model at finer scales of detail than in the parent view.
About Referencing a Callout View
When you create a detail callout from a section, plan, or elevation view, you can link the view to a particular area of the building model.
Create a Detail View
You can create a callout from a plan, section, or elevation view and then add detail components while using the model geometry as a base. When you create a callout or section detail, you can reference another detail or drafting view in the model.
Duplicate a Detail View
When duplicating a view, you can determine whether both the model geometry and the detail geometry are copied into the new view.
Save a View to an External Project
You can save a view to an external Revit LT project. This operation saves the view and all elements (model elements and view-specific elements) visible in that view to a new project file.