Dans cette leçon, vous utiliserez Revit pour ajuster certains paramètres avant d'améliorer la scène dans 3ds Max.
Pour cette leçon, Revit doit être installé sur votre poste de travail. Si vous n'avez pas installé Revit, passez directement à la leçon suivante, Liaison d'une scène 3ds Max dans le fichier Revit.
Préparation de la leçon :
Ouvrez l'application Revit. Cliquez sur
(Ouvrir). Accédez au dossier projet 3ds Max du didacticiel
3ds Max
. Mettez en surbrillance
beachhouse.rvt
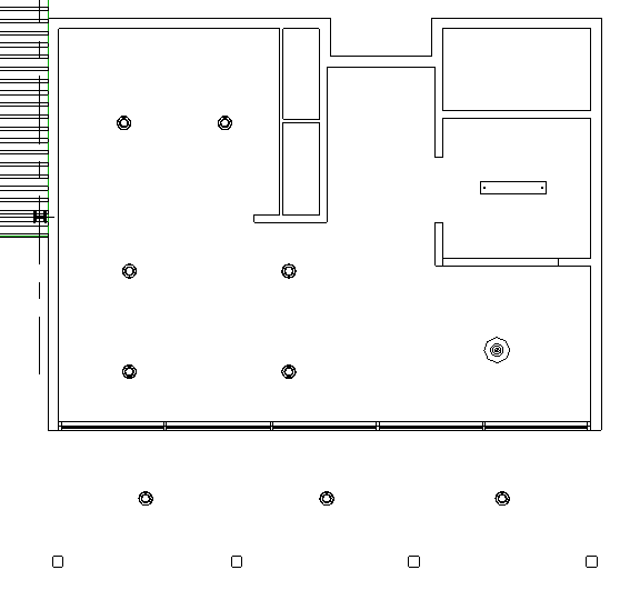
puis cliquez sur Ouvrir. Le projet beachhouse.rvt comporte un modèle de bungalow, situé sur une plage. Dans la procédure qui suit, vous utiliserez les options de Revit pour modifier le matériau du toit du modèle, dans le cadre de la préparation à l'exportation de la scène.

Modifiez le matériau du toit dans Revit :
(Propriétés du type). Revit ouvre la boîte de dialogue Propriétés du type.
groupe "Paramètres du type"
panneau déroulant Construction
élément Structure, cliquez sur Modifier. 
Revit ouvre la boîte de dialogue Modifier l'assemblage.
Revit affiche un groupe de fonctions sur la gauche, présentant une coupe détaillée du toit.

colonne Matériau, cliquez sur le premier élément de la liste: Roofing - Asphalt. 
Une fois que vous avez cliqué sur l'entrée Roofing - Asphalt, un bouton de navigateur
s'affiche. Cliquez sur ce bouton.
Revit ouvre la boîte de dialogue Matériaux.



Les coordonnées de textures et de mapping du matériau que vous avez sélectionné seront correctement transférées dans 3ds Max, sans intervention supplémentaire de votre part.
Vérifiez les propriétés de l'objet-lumière dans Revit :
Comme pour les matériaux, toutes les propriétés de l'objet-lumière de la scène Revit sont transférées correctement vers 3ds Max. Il vaut donc mieux vérifier que les lumières que vous utilisez dans la scène actuelle possèdent les propriétés que vous souhaitez utiliser dans 3ds Max.
Plans de plafond, cliquez deux fois sur le niveau 1. 
Revit affiche le plan du plafond.

Il y a sept lumières de plafond à l'intérieur de la maison et trois à l'extérieur sur le porche.

Revit affiche une description de l'objet lumière dans le groupe de fonctions Propriétés à gauche.


Revit ouvre une boîte de dialogue Propriétés du type.
groupe "Paramètres du type", faites défiler la liste vers le bas jusqu'au panneau déroulant Photométriques, puis vérifiez les paramètres affichés. 
Ces valeurs, notamment l'intensité initiale et la couleur initiale, affecteront le résultat rendu dans 3ds Max. Assurez-vous donc que ces paramètres comportent le résultat que vous recherchez. (Vous pouvez ensuite mettre à jour ces valeurs dans 3ds Max, le cas échéant.)


Créez une caméra :
Par défaut, la vue 3D dans Revit utilise une perspective isométrique, mais dans le rendu 3ds Max, vous allez travailler avec des vues de la caméra. Dans la présente procédure, vous devez créer une caméra correspondant à un point de vue extérieur.
Plans d'étage, puis cliquez deux fois sur Niveau 1. 



Revit crée une vue caméra. C'est la vue que vous utiliserez au départ pour effectuer le rendu de votre image dans 3ds Max. Le ruban est également modifié et affiche l'onglet Modifier | Caméras.

champ Nom de la vue, changez le nom de la caméra en Extérieur, puis cliquez sur Appliquer (ou appuyez sur Entrée). 

Après quelques instants, la vue affiche des collines au loin.
L'option Délimitation éloignée active étant désactivée, la caméra peut détecter le terrain de la scène au-delà du modèle du bungalow. Comme pour les propriétés de lumière et de matériaux, vous pouvez également modifier les paramètres de détourage dans 3ds Max, le cas échéant.

Vue Caméra avec détourage désactivé, montrant l'arrière-plan de la scène.
Définissez le rendu et la position du soleil :
Revit ouvre la boîte dialogue Rendu.

La plupart des valeurs de rendu n'ont pas besoin d'être modifiées dans la mesure où le rendu réel de la scène s'effectuera dans 3ds Max. Le paramétrage Condition de la Groupe Eclairage peut constituer une exception.
Si vous choisissez Extérieur: soleil uniquement dans la zone Eclairage
liste déroulante Thème, seul le système lumière du jour sera activé dans la scène de 3ds Max et tous les objets éclairage artificiel seront désactivés. Inversement, si vous sélectionnez Intérieur: lumière artificielle uniquement, seuls les objets éclairage artificiel intérieur seront utilisés dans la scène et le système lumière du jour sera désactivé.
Paramètre de soleil, cliquez sur le bouton
emplacement du soleil. 
Revit ouvre une boîte dialogue Paramètres de soleil, qui vous permet de définir l'emplacement géographique et l'heure de la journée correspondant à la position du soleil créée par le système lumière du jour.

(Les options Un jour et Plusieurs jours vous permettent de sélectionner les valeurs prédéfinies qui animent la position du soleil sur un ou plusieurs jours.)

Conservez l'emplacement par défaut (Boston, Massachusetts), car nous imaginons une maison sur Cape Cod, très légèrement au sud de la ville.
champ Date, changez le mois en 5 et le jour du mois en 10. 

Revit ouvre une boîte de dialogue Nom pour la nouvelle valeur prédéfinie.

Ce nom correspond au système lumière du jour présentant la position réelle du soleil à Cape Cod au milieu de l'après-midi.
Le nom de la valeur prédéfinie apparaît désormais dans la liste de la zone Valeurs prédéfinies.

Enregistrez votre travail :
Projet.