Creazione dinamica dei connettori mediante la definizione dei parametri del connettore, ad esempio il numero, la spaziatura e i valori dei pin.
Lo strumento Inserisci connettore crea un simbolo di connettore in base ai parametri definiti dall'utente. Il simbolo viene creato all'istante e inserito come inserimento di blocco nel file di disegno attivo. Dal momento che i simboli vengono creati quando sono necessari, viene meno l'esigenza di creare e gestire una libreria di simboli di connettore.
Modifica delle proprietà del disegno


. Trova
Componenti, selezionare Sequenziale.
Numeri fili, sezione Nuovo posizionamento numero filo, selezionare In linea.
Aggiunta di connettori al disegno


. Trova
Spaziatura pin: 1,0
Conteggio pin: 15
Spaziatura fissa
Elenco pin: 1
Inserisci tutto

L'anteprima è simile alla seguente immagine.

Viene visualizzato in anteprima un contorno del connettore per facilitare il posizionamento nel disegno. Gli angoli del lato spina del connettore sono arrotondati. Il punto di inserimento del connettore è indicato da una "x". Una freccia indica la direzione della connessione fili del lato spina per gli inserimenti del connettore a spina o con combinazione spina/presa oppure mostra la direzione della connessione fili per l'inserimento del connettore a presa.
Specificare il punto di inserimento o [Z=zoom, P=panoramica, X=intersezione fili, V=orizzontale/verticale, TAB=inverti]:
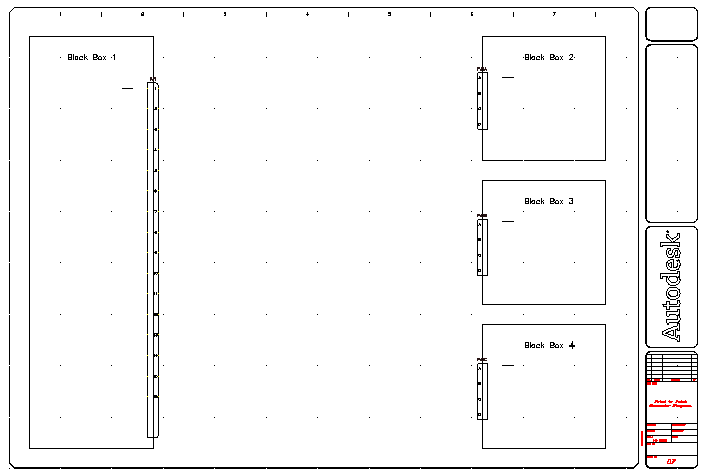
Selezionare il punto in cui inserire il connettore al centro del bordo destro del black box

Al connettore è stato automaticamente assegnato un contrassegno di componente di PJ1.


. Trova
Spaziatura pin: 0,75
Conteggio pin: 4
Spaziatura fissa
Elenco pin: A
Inserisci tutto
L'anteprima è simile alla seguente immagine.

Specificare il punto di inserimento o [Z=zoom, P=panoramica, X=intersezione fili, V=orizzontale/verticale, TAB=inverti]:
Selezionare il punto in cui inserire il connettore al centro del bordo sinistro del black box 2

Al connettore è stato automaticamente assegnato un contrassegno di componente di PJ2.
Ai connettori sono stati rispettivamente assegnati i contrassegni di componente di PJ3 e PJ4.
