コネクタを修正する

既存のコネクタをストレッチし、コネクタ ピンの追加、移動、および入れ替えを行います。

[コネクタ挿入]ツールバーには、コネクタやコネクタピンを修正するツールがあります。コネクタ内部に存在するピンを追加、削除、または移動することもできます。

既存のコネクタをストレッチする

  1. [回路図]タブ[コンポーネントを編集]パネル[コネクタを修正]ドロップダウン[コネクタ ストレッチ]の順にクリックします。 検索
  2. プロンプトに対して、次のように操作します。

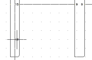
    ストレッチするコネクタの端を指定:  PJ1 の下部を選択します。

    目的点を指定:

    ブラック ボックス 1 の下に向かって、コネクタを引き下げます。

  3. PJ6 についても繰り返します。コネクタの下部を引き下げて、PJ1 と同じになるようにします。

コネクタ ピンの追加

  1. [回路図]タブ[コンポーネントを編集]パネル[コネクタを修正]ドロップダウン[コネクタ ピン追加]の順にクリックします。 検索
  2. プロンプトに対して、次のように操作します。

    オブジェクトを選択:    PJ1 を選択します。

    新しいピンの挿入場所を指定 または [リセット(R)] <16>:  

    PJ1 のピン 15 から 4 区画下を選択し、右クリックして[Enter]を押します。

    利用できる次のピン番号(16)が選択された地点に挿入されます。

  3. [回路図]タブ[コンポーネントを編集]パネル[コネクタを修正]ドロップダウン[コネクタ ピン追加]の順にクリックします。 検索
  4. プロンプトに対して、次のように操作します。

    オブジェクトを選択: PJ6 を選択します。

    新しいピンの挿入場所を指定 または [リセット(R)] <10>:

    PJ1 の新しいピン 16 を選択してピン 10 インラインを挿入し、右クリックして[Enter]を押します。

    注: ピンを削除するには[コネクタ ピン削除]ツールを使用します。削除するピンを選択すると、コネクタから自動的に削除されます。

コネクタ ピンを修正する

  1. [回路図]タブ[コンポーネントを編集]パネル[コネクタを修正]ドロップダウン[コネクタ ピン移動]の順にクリックします。 検索
  2. プロンプトに対して、次のように操作します。

    移動するコネクタ ピンを選択:  PJ1 のピン 16 を選択します。

    ピン 16 の移動先を指定:  PJ1 の 2 つのスペースを選択します。

    移動するコネクタ ピンを選択:  PJ6 のピン 10 を選択します。

    ピン 10 の移動先を指定:

    PJ1 のピン 16 を選択し、ピン 10 インラインを移動して右クリックします。

  3. [回路図]タブ[コンポーネントを編集]パネル[コネクタを修正]ドロップダウン[コネクタ ピン入れ替え]の順にクリックします。 検索
  4. プロンプトに対して、次のように操作します。

    コネクタ ピンを選択:   PJ1 のピン 16 を選択します。

    コネクタ ピンを選択: 入れ替える:  PJ1 のピン 12 を選択して右クリックします。

  5. [回路図]タブ[コンポーネントを編集]パネル[コネクタを修正]ドロップダウン[コネクタ逆向き]の順にクリックします。 検索
  6. プロンプトに対して、次のように操作します。

    逆向きにするコネクタを選択:  一番上のインライン コネクタを選択し、右クリックします。

  7. [回路図]タブ[コンポーネントを挿入]パネル[コネクタ挿入]ドロップダウン[コネクタ挿入]の順にクリックします。 検索
  8. [コネクタ挿入]ダイアログ ボックスで、次のように指定します。

    [ピン間隔]:  1.0

    [ピン数]:  2

    [固定間隔]

    [ピン リスト]:  1

    [すべて挿入]

  9. [詳細]をクリックします。
  10. [タイプ]領域で[分割ラインを追加]を選択します。
  11. [表示]領域で[ピン]を[プラグ側]に設定します。
  12. [挿入]をクリックします。
  13. プロンプトに対して、次のように操作します。

    挿入点を指定 または[ズーム(Z)、画面移動(P)、配線交差(X)、水平/垂直(V)、反転(Tab)]:

    ブラック ボックス 1 の最上部をクリックして、コネクタを配置します。

  14. [回路図]タブ[コンポーネントを編集]パネル[コネクタを修正]ドロップダウン[コネクタ回転]の順にクリックします。 検索
  15. プロンプトに対して、次のように操作します。

    回転するコネクタを選択または[HOLD]:

    新しいコネクタを選択し、右クリックして[入力]を選択します。