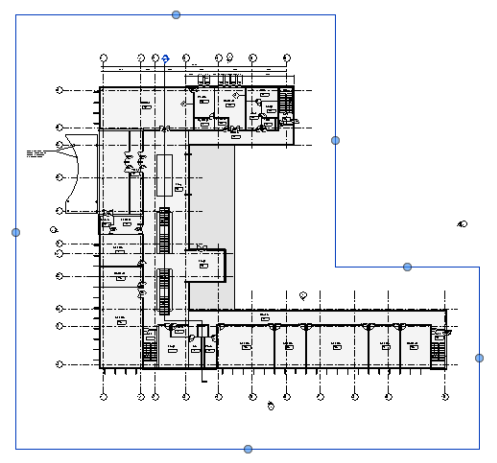
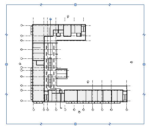
자르기 영역을 사용하여 뷰에서 모델의 일부를 숨길 수 있습니다.
자르기 영역은 직사각형이거나 직사각형이 아닐 수 있습니다.
- 평면뷰, 입면뷰 또는 단면뷰에서 자르기 영역을 선택하고 수정 편집 | <뷰 유형> 탭
모드 패널
자르기 편집을 클릭합니다.
- 수정 및 그리기 패널의 도구를 사용하여 필요에 따라 자르기 영역을 편집합니다. 기존 선을 수정하거나 선을 삭제한 다음 완전히 다른 모양을 스케치합니다.
주: 자르기 영역이 직사각형이 아닌 경우 PDF로 인쇄할 때 파일 크기가 커질 수 있습니다. 자세한 정보는
문제 해결: 뷰 및 시트 인쇄를 참고하십시오.
- 완료되면
편집 모드 완료를 클릭합니다.
주: 편집한 자르기 영역을 직사각형 모양으로 재설정하려면 자르기 영역을 선택하고 수정 편집 | <뷰 유형> 탭

모드 패널


자르기 재설정을 클릭합니다.